Kyrkvallantie 8

3h,k,vh,kph,s, khh/askartelu, varasto, at

Storlek

89 m²

Försäljningspris

248 000,00 €

Skuldfritt pris

248 000,00 €

Område

02400 Kirkkonummi

Typ

egnahemshus

Våning

1-2 / 2

Ihanan harmoninen ja lämminhenkinen pikkukoti kauniilla tontilla!
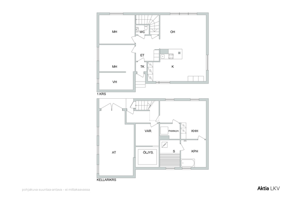
Asuintilat yhdessä tasossa, keittiö, ruokailutila, olohuone, 2 makuuhuonetta, vaatehuone, wc ja iso eteisaula. Kellarissa kodinhoitohuone, pesuhuone, sauna ja runsaasti säilytystilaa. Päädyssä lämmin autotalli.
Monimuotoinen puutarhatontti istutuksineen.

Optimaalinen sijainti, koulut, päiväkodit ja muut palvelut kävelyetäisyydellä.

Esittelyt vain sopimuksen mukaan/visningar endast enligt överenskommelse

Teitä palvelee/Ni betjänas av Gitty Nurmi 050 314 1560 gitty.nurmi@aktialkv.fi

Grunduppgifter

Typ
egnahemshus
Form av ägande
oma
Skuldfritt pris
248 000,00 €
Försäljningspris
248 000,00 €
Pris per kvadrat
1 503,03 €
Byggnadsår
1975
Beskrivning av objektet
3h,k,vh,kph,s, khh/askartelu, varasto, at
Bostaden blir ledig
sopimuksen mukaan
Lokaler och utrustning
väg ända fram, egen bastu, elanslutning övergår, kabel-tv, konditionsgranskning har inte utförts, fuktmätning har inte utförts
Antal rum
kolmio
Bostadsyta
89 m²
Övriga utrymmen
76 m²
Yta totalt
165 m²
Våning
1-2
Allmänt skick
bra
Energiklass
E2018

Kostnader

Övriga avgifter
Öljynkulutus n. 1500 l/vuosi, sähkönkulutus n. 12 000 kWh/v (taloudessa 1 täyssähköauto)

Tomt och planläggning

Tomtens areal
1 110 m²
Tomtägare
oma
Tomtens typ
Rinnetontti
mera information om planläggning
Kirkkonummen kunta / kaavoitusosasto 09 296 71/
Byggrätt
Rakennusoikeus 220 k-m². Yhden enintään kaksiasuntoisen asuinrakennuksen. Ullakkoa ei saa rakentaa. Sen lisäksi 30 k-m² 1-krs autosuoja/talousrakennus.

Objektets beskrivning

Tomtens areal
1 110 m²
Fastighetsbeteckning
257-418-1-34
Tomtägare
oma
Annat
väg ända fram, egen bastu, elanslutning övergår, kabel-tv, konditionsgranskning har inte utförts, fuktmätning har inte utförts

Material, utrustning och uppvärming

Byggmaterial
tiili
Taktyp
Harja
Taktäckning
saumapelti
Värmesystem
ilmavesilämpöpumppu öljy

Bostadsbolag

Tomtägare
oma

WC

Antal
1

Service och trafikförbindelser

Tjänster
Kaikki monipuoliset palvelut noin 1 kilometrin etäisyydellä.
Dagvård
Jokirinteen oppimiskeskus jossa vuoropäiväkoti.
Skola
Jokirinteen oppimiskeskus lähes vieressä.
Trafikförbindelser
Hyvät

Kontakta mäklaren

Dela sidan

Fortsätt utforska