Näsintie 77

5h+k+s

Storlek

150 m²

Försäljningspris

159 000,00 €

Skuldfritt pris

159 000,00 €

Område

07830 Pukaro

Typ

egnahemshus

Våning

1 / 2

Tilava ja tunnelmallinen hirsitalo vuodelta 1914, jota on vuosien varrella laajasti j remontoitu. Asuinpinta-alaa noin 150 m².

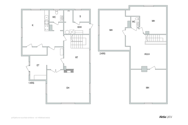
Alakerrassa sijaitsevat keittiö, iso eteinen, ruokailutila sekä olohuone. Olohuoneen sydämenä toimii varaava takka, ja ruokailutilassa on valurautakamiina luomassa lämpöä ja tunnelmaa. Kylpyhuone ja kodinhoitotila tarjoavat käytännöllisyyttä arkeen, ja niistä on käynti suoraan ulos sekä saunaan.

Yläkerrassa on kolme makuuhuonetta, tilava aula sekä wc, mikä tekee tilaratkaisusta toimivan myös isommalle perheelle.

Kiinteistö sijaitsee yli kolmen hehtaarin tontilla, joka tarjoaa runsaasti tilaa ja mahdollisuuksia. Pihapiirissä on n. 80 m² kokoinen tallirakennus, pihatto sekä laidunalueet, jotka sopivat erinomaisesti esimerkiksi hevosten pitoon tai muuhun harrastekäyttöön.

Grunduppgifter

Typ
egnahemshus
Skuldfritt pris
159 000,00 €
Försäljningspris
159 000,00 €
Pris per kvadrat
1 060,00 €
Byggnadsår
1914
Beskrivning av objektet
5h+k+s
Bostaden blir ledig
heti
Lokaler och utrustning
väg ända fram, egen bastu, elanslutning övergår, direkt utgång, konditionsgranskning har inte utförts
Antal rum
5 h
Bostadsyta
150 m²
Yta totalt
150 m²
Våning
1
Allmänt skick
tillfredsställande

Tomt och planläggning

Mera information om tomten
Tontilla pihapiiriä jossa nurmikkoa, hiekkateitä sekä laidunmaata. Tontin reunassa kulkee pieni puro jossa on reilusti vettä keväällä ja syksyllä, mutta kesällä puro kuihtuu.
Tomtens areal
3,61 ha
Tomtägare
oma
Tomtens typ
Tasamaatontti
mera information om planläggning
Lapinjärven kunta
Byggrätt
Lapinjärven kunta

Objektets beskrivning

Tomtens areal
3,61 ha
Fastighetsbeteckning
407-410-9-78
Tomtägare
oma
Annat
väg ända fram, egen bastu, elanslutning övergår, direkt utgång, konditionsgranskning har inte utförts

Material, utrustning och uppvärming

Byggmaterial
hirsi
Taktyp
Harjakatto
Taktäckning
huopa
Värmesystem
puu sähkö
Spis
takka

Bostadsbolag

Tomtägare
oma

Kök

Väggmaterial
muu
Golvmaterial
lauta
Spis
induktio puuliesi
Kylskåp
jääkaappi/pakastin

Badrum

Väggmaterial
kaakeli
Golvmaterial
laatta
Utrustning
pesukoneliitäntä lattialämmitys suihku kiinteät valaisimet kylpyhuonekaapisto

Hjälpkök

Väggmaterial
kaakeli
Golvmaterial
laatta
Utrustning
pesuallas lattialämmitys pyykkikaapit

WC

Antal
2
Väggmaterial
kaakeli muu
Golvmaterial
laatta

Vardagsrum

Väggmaterial
tapetti
Golvmaterial
lauta

Sovrum

Antal
3
Golvmaterial
lauta

Övriga utrymmen

Övriga utrymmen
Ruokailutila Eteinen Aula

Kontakta mäklaren

Dela sidan

Fortsätt utforska