Norra Larsmovägen 640

3r k bdr b wc hjk

Storlek

100 m²

Försäljningspris

99 000,00 €

Skuldfritt pris

99 000,00 €

Område

68560 Larsmo

Typ

egnahemshus

Våning

1 / 1

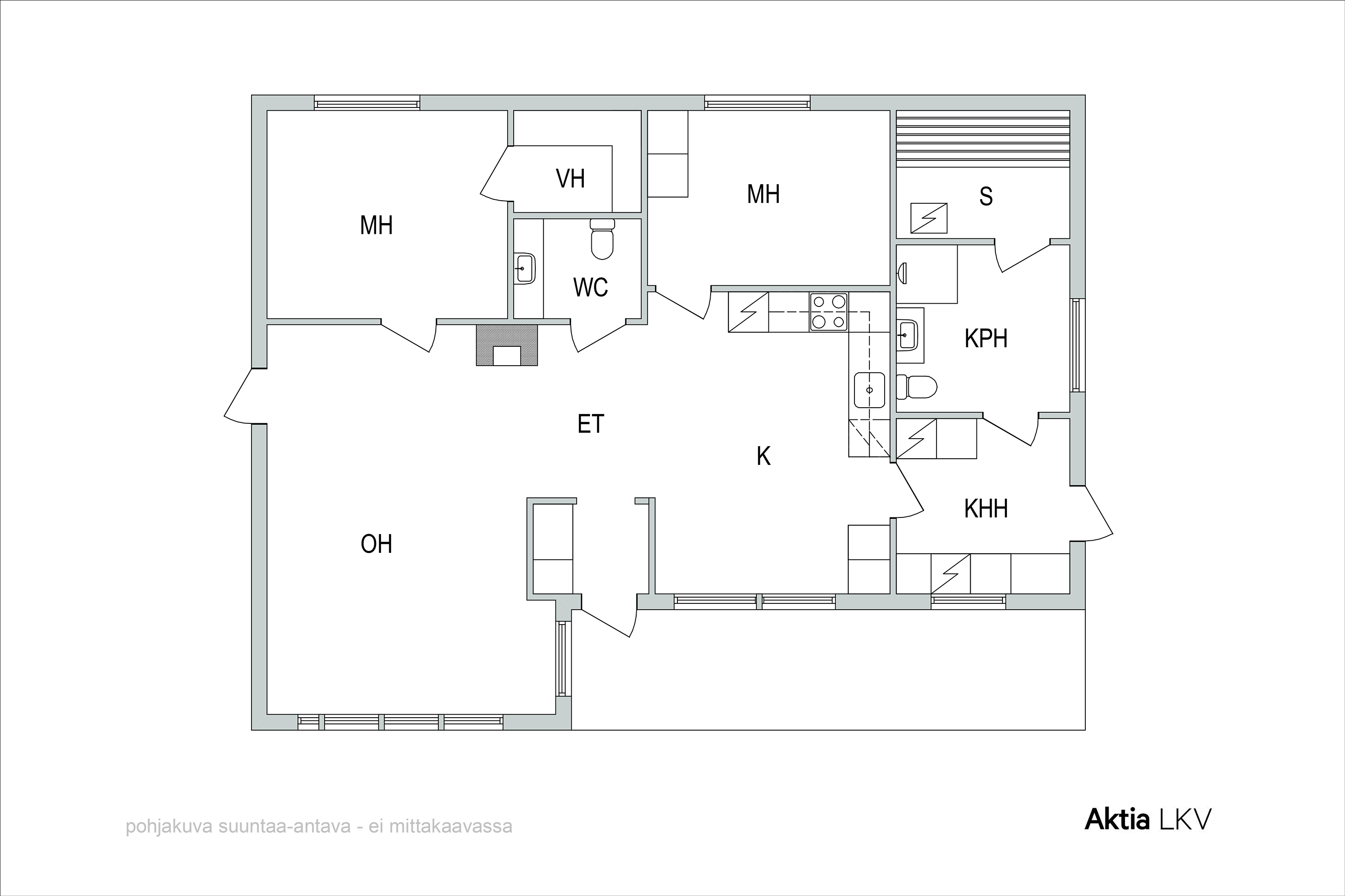
Välkommen till detta trivsamma och välplanerade hus på Södra Larsmovägen. Huset erbjuder två sovrum, ett allrum med ackumulerande spis, kök samt badrum, bastu och separat wc – alla utrymmen trevligt renoverade. Större renoveringar gjordes 2006–2007, inklusive VVS, el, kök och badrum, vilket ger ett modernt och bekvämt boende.

Tomten är egen och rymlig på 1 679 m², och på gården finns dessutom en garagebyggnad med förråd. Inom 300 meter når du närbutik och skola, vilket gör vardagen enkel och smidig.

Här bor du med en lantlig känsla samtidigt som du har nära till Jakobstads service.

Grunduppgifter

Typ
egnahemshus
Skuldfritt pris
99 000,00 €
Försäljningspris
99 000,00 €
Pris per kvadrat
990,00 €
Byggnadsår
1971
Beskrivning av objektet
3r k bdr b wc hjk
Bostaden blir ledig
genast
Lokaler och utrustning
väg ända fram, egen bastu, elanslutning övergår, direkt utgång
Antal rum
inte klassificerad
Bostadsyta
100 m²
Övriga utrymmen
0
Yta totalt
100 m²
Våning
1
Allmänt skick
bra
Energiklass
Ej lagenligt energicertifikat

Kostnader

Övriga avgifter
ca. 10.000kWh/år

Tomt och planläggning

Tomtens areal
1 679 m²
Tomtägare
egen
Tomtens typ
Plantomt

Objektets beskrivning

Tomtens areal
1 679 m²
Fastighetsbeteckning
440-401-12-27
Tomtägare
egen
Annat
väg ända fram, egen bastu, elanslutning övergår, direkt utgång

Material, utrustning och uppvärming

Byggmaterial
trä
Taktyp
Åstak
Taktäckning
Plåt
Värmesystem
ved el
Spis
öppen spis

Bostadsbolag

Tomtägare
egen

Kök

Väggmaterial
tapet
Golvmaterial
plast
Utrustning
spisfläkt diskmaskin
Spis
keramisk spis elspis
Kylskåp
kylskåp

Badrum

Väggmaterial
kakel
Golvmaterial
klinker
Utrustning
duschvägg tvättmaskinsanslutning golvvärme dusch spegel

Hjälpkök

Golvmaterial
plast

WC

Väggmaterial
kakel
Golvmaterial
plast

Vardagsrum

Väggmaterial
tapet
Golvmaterial
plast

Sovrum

Antal
2
Golvmaterial
plast

Kontakta mäklaren

Dela sidan

Fortsätt utforska