Laukkamäentie 15

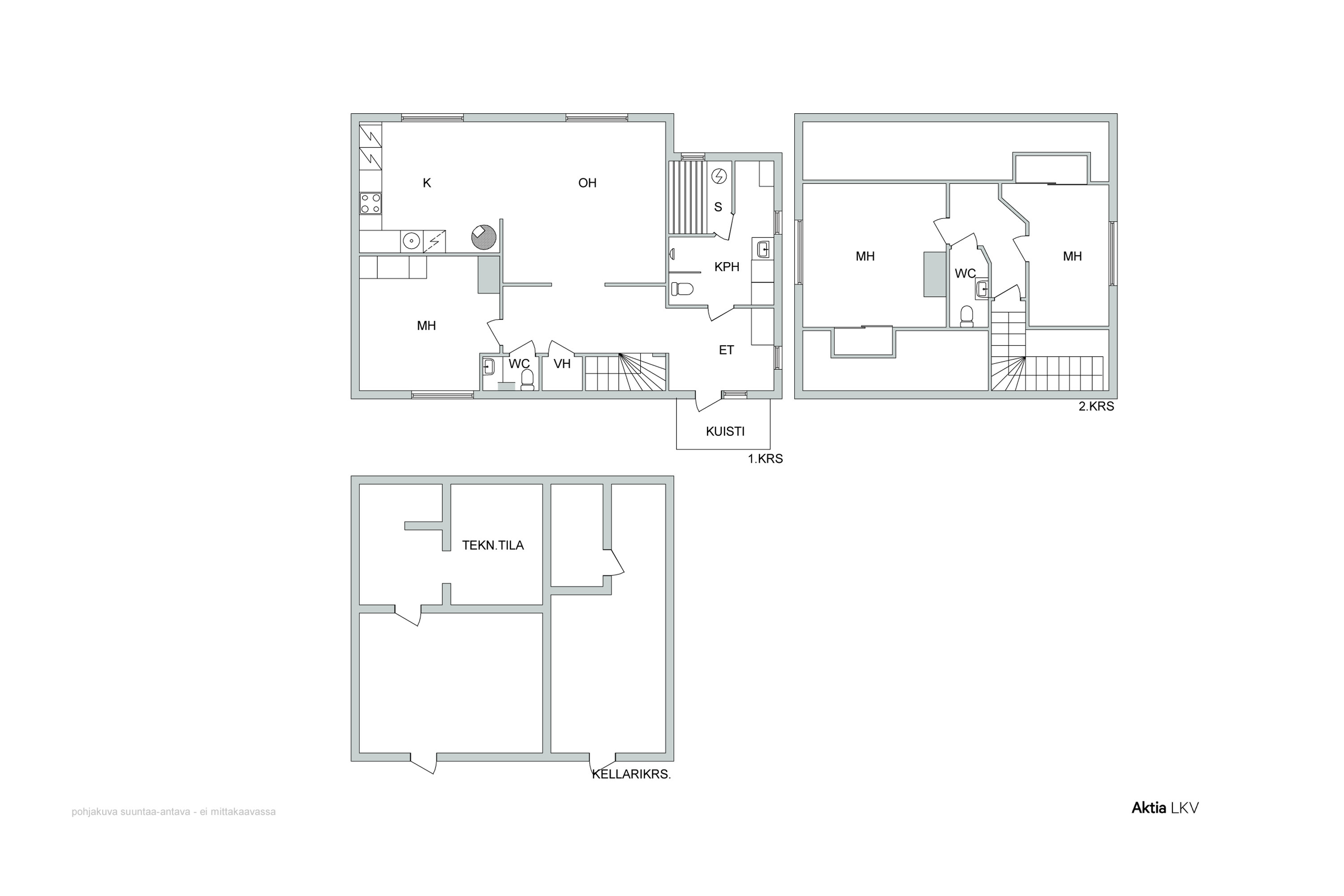
Oh,k,mh x3,s,kph/wc,wc x2,vh,et, kellarissa askartelu- ja varastotilaa

Storlek

143 m²

Försäljningspris

283 000,00 €

Skuldfritt pris

283 000,00 €

Område

08500 Lohja

Typ

egnahemshus

Våning

3 / 3

Täysin peruskorjattu koti toivottaa uuden perheen tervetulleeksi!

Rauhallisella paikalla Lempolassa sijaitsee tämä kauniisti remontoitu koti.
Keittiössä ihana pönttöuuni, joka antaa lämpöä myös samassa tilassa olevaan olohuoneeseen.
Talon kolmesta makuuhuoneesta yksi sijaitsee tässä asuinkerroksessa ja toinen talon tulisijoista; kaunis Porin Matti. Tuoreeseen laajennusosaan on rakennettu sauna, kylpyhuone/wc sekä pieni kodinhoitotila. Tilavasta eteisestä löytyy hyvät liukuovikaapistot!

Yläkerrassa kaksi makuuhuonetta, joihin on kätevästi sijoitettu lisää säilytystilaa liukuovien taakse. Tottahan toki, täälläkin on oma wc!

Kellarikerroksessa hyvää harraste- ja varastotilaa sekä uunituoreen lämmitysjärjestelmän keskus.
Kauniiksi ja helppohoitoiseksi rajattu piha-alue.

Heti vapaana oleva koti, edullisilla lämmityskustannuksilla sekä hyvällä sijainnilla. Moottoritielle vain muutama minuutti.

Esittelyt ja lisätiedot Satu Taponen 047467035, satu.taponen@aktialkv.fi

Grunduppgifter

Typ
egnahemshus
Skuldfritt pris
283 000,00 €
Försäljningspris
283 000,00 €
Pris per kvadrat
1 979,02 €
Byggnadsår
1950
Beskrivning av objektet
Oh,k,mh x3,s,kph/wc,wc x2,vh,et, kellarissa askartelu- ja varastotilaa
Bostaden blir ledig
genast
Lokaler och utrustning
väg ända fram, egen bastu, elanslutning övergår, konditionsgranskning har inte utförts
Antal rum
5 h
Bostadsyta
143 m²
Övriga utrymmen
0
Yta totalt
143 m²
Våning
3
Allmänt skick
bra
Energiklass
Ej lagenligt energicertifikat

Kostnader

Övriga avgifter
Sähkön kokonaiskulutusarvio noin 10000 kWh/v + puita muutama kuutio. Kiinteistövero 306,56 (2025) €/v, valokuitu 15,90 €/kk, puhtaanapito Rosk n Roll -hinnaston mukaan, vesi- ja jätevesi henkilömäärän ja käyttötottumuksen mukaan. Vakuutus. Varainsiirtovero 3 %.

Tomt och planläggning

Mera information om tomten
Nyt myytävän tontin osuus 879 m2. Mahdollisuus ostaa yläpuolella olevaa lisämaata 808 m2.
Tomtens areal
879 m²
Tomtägare
oma
mera information om planläggning
Lohjan kaupunki 0401886100
Byggrätt
Lohjan kaupunki/rakennusvalvonta 0401886100

Objektets beskrivning

Tomtens areal
879 m²
Fastighetsbeteckning
444-423-1-928
Tomtägare
oma
Annat
väg ända fram, egen bastu, elanslutning övergår, konditionsgranskning har inte utförts

Material, utrustning och uppvärming

Byggmaterial
puu
Taktyp
harjakatto
Taktäckning
peltikate
Värmesystem
muu

Bostadsbolag

Tomtägare
oma

WC

Antal
3

Kontakta mäklaren

Dela sidan

Fortsätt utforska