Leikkiläntie 293

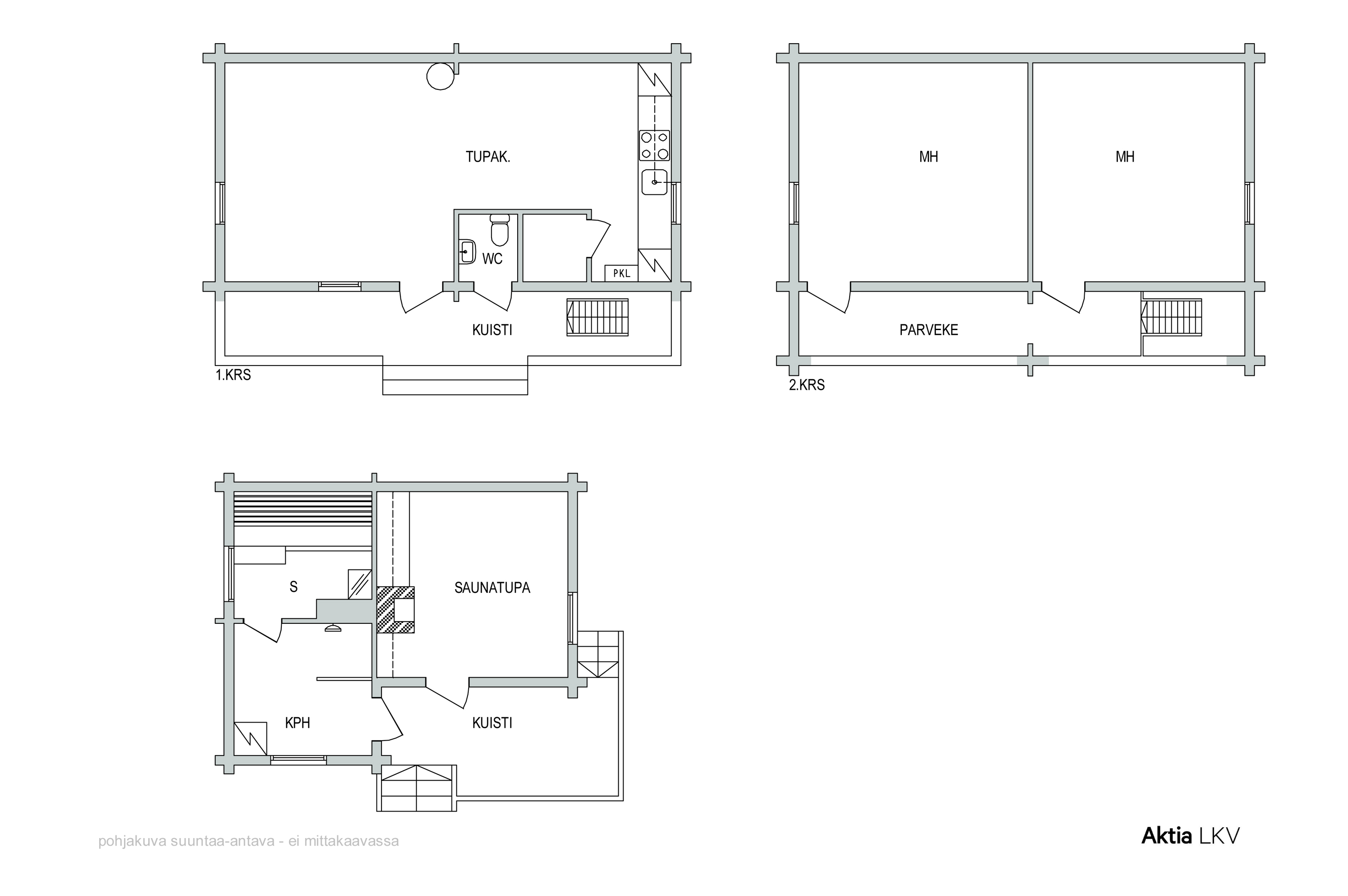
tupa/keittiö, 2 mh, wc, kph

Storlek

81 m²

Försäljningspris

249 000,00 €

Skuldfritt pris

249 000,00 €

Område

09220 Lohja

Typ

stuga eller villa

Våning

1 / 2

Viihtyisä kokonaisuus Silmee-järven rannalla Sammatissa. Täällä on tilaa, tunnelmaa, oma metsä ja uimaranta. Asuinrakennuksia on kaksi, tyylikäs Finnlamellin huvila ja tunnelmallinen mummonmökki.
Kokonaisuuteen kuuluu myös noin kahden hehtaarin oma metsäalue. Tontilla kohoaa kaunis mäntymäki jäkäläkankaineen, luonnonrauhaa parhaimmillaan ja paikka, jossa mieli todella rauhoittuu. Uimaranta on omassa rauhassa ja on pienillekin lapsille turvallinen.
Tämä kohde sopii erinomaisesti niin omaksi vapaa-ajan keitaaksi kuin perheen ja ystävien yhteiseksi lomapaikaksi, tilaa on useammallekin vieraalle.
Tervetuloa tutustumaan! Täältä voit löytää oman paikkasi luonnon keskeltä.

Sovi oma esittelyaikasi Sari p. 050 560 0321 tai sari.anttila@aktialkv.fi

Grunduppgifter

Typ
stuga eller villa
Skuldfritt pris
249 000,00 €
Försäljningspris
249 000,00 €
Pris per kvadrat
3 074,07 €
Byggnadsår
2015
Beskrivning av objektet
tupa/keittiö, 2 mh, wc, kph
Bostaden blir ledig
enligt överenskommelse
Lokaler och utrustning
väg ända fram, egen bastu, elanslutning övergår, vinterbonad, konditionsgranskning har inte utförts, fuktmätning har inte utförts
Antal rum
ei luokiteltu
Bostadsyta
81 m²
Yta totalt
81 m²
Våning
1
Allmänt skick
bra

Kostnader

Övriga avgifter
Vesi- ja jätevesi kulutuksen mukaan, jätemaksu, vakuutus, nuohous. Vuonna 2025 sähkön kulutus oli 9397 kWh, tilat on pidetty lämpiminä vuoden ympäri ja autoa on ladattu.

Tomt och planläggning

Mera information om tomten
Paljon luonnontilaista metsää, mökin ympäristössä kauniita istutuksia,
Tomtens areal
1,94 ha
Tomtägare
oma
Tomtens typ
Rinnetontti
mera information om planläggning
RA-1, omarantaisten loma-asuntojen alue. Tien itäpuolinen tontti sijaitsee kaavoittamattomalla alueella. Lohjan kaupunki Asiakaspalvelukeskus Puh. 040 188 6100 asiakaspalvelukeskus@lohja.fi
Byggrätt
Rakennusoikeus on tarkistettava luvan myöntävältä viranomaiselta.

Objektets beskrivning

Tomtens areal
1,94 ha
Fastighetsbeteckning
444-470-4-80
Tomtägare
oma
Annat
väg ända fram, egen bastu, elanslutning övergår, vinterbonad, konditionsgranskning har inte utförts, fuktmätning har inte utförts

Material, utrustning och uppvärming

Byggmaterial
puu hirsi
Taktyp
harjakatto
Taktäckning
huopakate
Värmesystem
puu sähkö Ilmalämpöpumppu
Spis
takka

Bostadsbolag

Tomtägare
oma

Badrum

Utrustning
suihku

WC

Antal
2
Golvmaterial
laatta

Sovrum

Antal
2

Service och trafikförbindelser

Tjänster
Sammatin Sale 3,5 km, Saukkolan Sale 7,7 km, Landen K-kauppa, rautakauppa 7,6 km
Dagvård
Sammatti 3,5 km
Skola
Sammatin koulu 3,5 km
Trafikförbindelser
linja-auto Turku-Helsinki pysäkki 5,3 km

Kontakta mäklaren

Dela sidan

Fortsätt utforska