Käärmekalliontie 4

4h+k+s

Storlek

111 m²

Försäljningspris

99 000,00 €

Skuldfritt pris

99 000,00 €

Område

07910 Valko

Typ

egnahemshus

Våning

1 / 1

Viihtyisä omakotitalo rauhallisella alueella Loviisan Valkossa

Tervetuloa tutustumaan tähän 111 m² kokoiseen, vuonna 1984 rakennettuun puurakenteiseen omakotitaloon, joka sijaitsee Loviisan Valkossa rauhallisella ja viihtyisällä omakotialueella.

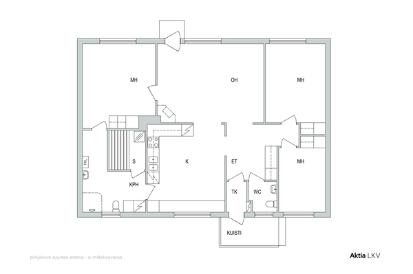
Tämä koti tarjoaa toimivan pohjaratkaisun ja kodikkaan tunnelman. Asuintiloissa on neljä huonetta, keittiö, eteinen sekä kylpyhuone/kodinhoitohuone. Lisäksi talossa on puulämmitteinen sauna, jossa rentoudut päivän päätteeksi aidossa suomalaisessa löylyssä.

Lämmitysmuotona on suorasähkö, jota tukevat varaava takka olohuoneessa sekä ilmalämpöpumppu eteisessä – yhdessä ne pitävät asumiskustannukset kohtuullisina ja sisäilman miellyttävänä ympäri vuoden.

Pihapiiriin kuuluu autokatos/varastorakennus, jotka tuovat käytännöllisyyttä arkeen. Rauhallinen sijainti ja suojaisa oma piha tekevät tästä kodista loistavan valinnan niin perheelle kuin pariskunnalle, joka arvostaa luonnonläheisyyttä ja tilaa ympärillään.

Grunduppgifter

Typ
egnahemshus
Skuldfritt pris
99 000,00 €
Försäljningspris
99 000,00 €
Pris per kvadrat
891,89 €
Byggnadsår
1984
Beskrivning av objektet
4h+k+s
Bostaden blir ledig
genast
Lokaler och utrustning
väg ända fram, egen bastu, elanslutning övergår
Antal rum
4 h
Bostadsyta
111 m²
Övriga utrymmen
0
Yta totalt
111 m²
Våning
1
Allmänt skick
tillfredsställande
Energiklass
Ej lagenligt energicertifikat

Tomt och planläggning

Tomtens areal
753 m²
Tomtägare
oma
Tomtens typ
Tasamaatontti
mera information om planläggning
Loviisan kaupunki
Byggrätt
Loviisan kaupunki

Objektets beskrivning

Tomtens areal
753 m²
Fastighetsbeteckning
434-11-1155-2
Tomtägare
oma
Annat
väg ända fram, egen bastu, elanslutning övergår

Material, utrustning och uppvärming

Byggmaterial
puu elementti
Taktyp
harjakatto
Taktäckning
pelti
Värmesystem
puu sähkö Ilmalämpöpumppu
Spis
takka

Bostadsbolag

Tomtägare
oma

Kök

Väggmaterial
kaakeli maalattu
Golvmaterial
laminaatti
Utrustning
liesituuletin astianpesukone
Spis
keraaminen
Kylskåp
jääkaappi/pakastin

Badrum

Väggmaterial
kaakeli
Golvmaterial
laatta
Utrustning
pesukoneliitäntä lattialämmitys suihku peilikaappi kylpyhuonekaapisto

WC

Väggmaterial
muu
Golvmaterial
laatta

Vardagsrum

Väggmaterial
tapetti
Golvmaterial
laminaatti

Sovrum

Antal
3
Golvmaterial
laminaatti lauta

Kontakta mäklaren

Dela sidan

Fortsätt utforska