Ajurinkatu 8

4h+k+kph

Storlek

100 m²

Försäljningspris

75 000,00 €

Skuldfritt pris

75 000,00 €

Område

07900 Loviisa

Typ

egnahemshus

Våning

1 / 2

Omakotitalo Loviisan Uudessakaupungissa

1964 rakennettu yksitasoinen omakotitalo rauhallisella sijainnilla, lähellä keskustan palveluja.
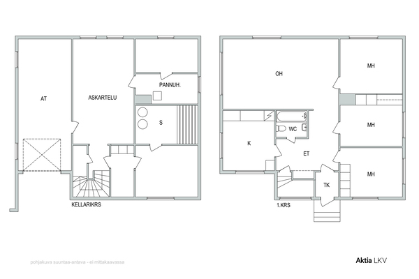
Asuinpinta-ala noin 100 m². Lisäksi isot kellaritilat sekä autotalli talon yhteydessä.
Pihalla pieni varastorakennus .

Talon salaojat uusittu vuonna 2009 ja 5/8 ikkunoista vaihdettu 2014.
Asuintilat sekä kylpyhuone remontoitu 1990-luvulla, ja ne kaipaavat nyt päivitystä vastaamaan nykypäivän tasoa.

Lämmitysmuotona puu-/sähkölämmitteinen kattila, joka mahdollistaa joustavan ja kustannustehokkaan lämmityksen.

Iso kellarikerros, jossa aiemmin ollut sauna ja pesutilat on purettu – tila tarjoaa mahdollisuuksia esimerkiksi uudelle saunaosastolle, harrastetilalle tai varastoksi. Löytyy myös kodinhoitotilat.

Grunduppgifter

Typ
egnahemshus
Skuldfritt pris
75 000,00 €
Försäljningspris
75 000,00 €
Pris per kvadrat
375,00 €
Byggnadsår
1964
Beskrivning av objektet
4h+k+kph
Bostaden blir ledig
genast
Lokaler och utrustning
väg ända fram, elanslutning övergår, besiktning har utförts
Antal rum
ei luokiteltu
Bostadsyta
100 m²
Övriga utrymmen
100 m²
Yta totalt
200 m²
Våning
1
Allmänt skick
nöjaktig
Energiklass
Ej lagenligt energicertifikat

Tomt och planläggning

Tomtens areal
660 m²
Tomtägare
oma
Tomtens typ
Tasamaatontti
mera information om planläggning
Loviisan kaupunki
Byggrätt
Loviisan kaupunki

Objektets beskrivning

Tomtens areal
660 m²
Fastighetsbeteckning
434-6-606-950
Tomtägare
oma
Annat
väg ända fram, elanslutning övergår, besiktning har utförts

Material, utrustning och uppvärming

Byggmaterial
puu
Taktyp
harjakatto
Taktäckning
pelti
Värmesystem
puu sähkö

Bostadsbolag

Tomtägare
oma

Kök

Väggmaterial
kaakeli maalattu
Golvmaterial
laminaatti
Spis
keraaminen

Badrum

Väggmaterial
kaakeli
Golvmaterial
laatta
Utrustning
kylpyamme wc-istuin suihku

Hjälpkök

Väggmaterial
muu
Golvmaterial
laatta
Utrustning
pesukoneliitäntä pesuallas

Vardagsrum

Väggmaterial
tapetti
Golvmaterial
laminaatti

Sovrum

Antal
3
Golvmaterial
lauta

Övriga utrymmen

Övriga utrymmen
Eteinen Tuulikaappi

Kontakta mäklaren

Dela sidan

Fortsätt utforska