Torggatan 6 C3

Townhouse i två våningar i hjärtat av Mariehamn

Storlek

91,8 m²

Försäljningspris

510 000,00 €

Skuldfritt pris

510 000,00 €

Område

22100 Mariehamn

Typ

höghus

Våning

2 / 6

Ett Townhouse i Två Våningar – Stilfullt och Bekvämt Boende på Torggatan 6

Välkommen till ett modernt och välplanerat townhouse mitt i Mariehamns centrum. Denna bostad erbjuder ett attraktivt boende i två plan där genomtänkt design möter funktionella lösningar – med stadens utbud precis utanför dörren.

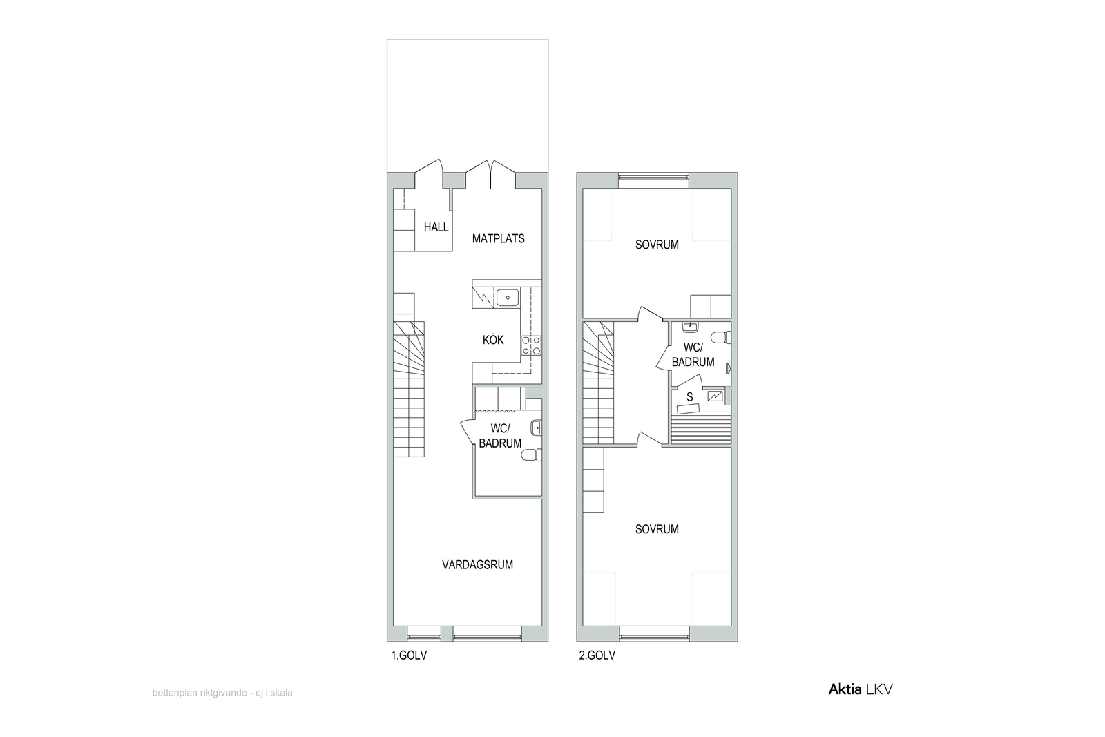
Två Våningar med Effektiv Planlösning
Townhouset omfattar 92 m² fördelade på två våningsplan och är utformat för att skapa en tydlig uppdelning mellan sociala ytor och privata rum.
På nedre plan möts du av kök och vardagsrum i en öppen och inbjudande planlösning med fint ljusinsläpp. Här finns även ett badrum samt utgång till bostadens terrass i västerläge – en härlig plats för eftermiddagssol och kvällshäng.
På övre våningen finns två luftiga sovrum samt ett badrum med bastu, vilket ger en extra känsla av vardagslyx och avkoppling.

Terrass i Västerläge
Den privata terrassen blir en naturlig förlängning av köket och bjuder på sol från eftermiddag till kväll. En trevlig plats för middagar utomhus, avkoppling eller sociala stunder i en skyddad miljö.

Genomtänkta Materialval och Modern Design
Bostaden präglas av noggrant utvalda material såsom vitpigmenterade ekgolv, ljusa varmgrå väggar och ett stilrent kök med släta luckor och bänkskivor i kvartskomposit. Badrummen är elegant utförda i granitkeramik och utrustade med moderna lösningar för komfort och funktion.

Ljus, Harmoni och Funktion
Stora fönster mot väster och öster i en välbalanserad planlösning skapar ett behagligt ljusflöde genom hela bostaden. Här är varje kvadratmeter effektivt utnyttjad för att erbjuda ett hem som känns både luftigt och ombonat.

Centralt Läge med Unik Karaktär
BAB Bokhandlargränd kombinerar modern arkitektur med historiska inslag genom det K-märkta Telegrafhuset, integrerat i byggnaden. Med direkt tillgång till handel, restauranger och service på Torggatan bor du bekvämt mitt i stadens puls.

Ett Tryggt och Hållbart Boende
Projektet är utformat med fokus på kvalitet, hållbarhet och trivsel. Här finns grön innergård, privata förråd, garageplatser med möjlighet till elbilsladdning samt cykelparkeringar – allt för ett smidigt och framtidssäkert boende.

Välkommen att uppleva ett modernt townhouse på en av Mariehamns mest eftertraktade adresser.

Grunduppgifter

Typ
höghus
Form av ägande
egen
Skuldfritt pris
510 000,00 €
Försäljningspris
510 000,00 €
Pris per kvadrat
5 555,56 €
Byggnadsår
2022
Beskrivning av objektet
Townhouse i två våningar i hjärtat av Mariehamn
Bostaden blir ledig
genast
Lokaler och utrustning
egen bastu, balkong, hiss
Antal rum
3 rum
Bostadsyta
91,8 m²
Övriga utrymmen
0
Yta totalt
91,8 m²
Våning
2
Allmänt skick
bra
Energiklass
Ej lagenligt energicertifikat

Kostnader

Skötselvederlag
332,50 €
Bolagsvederlag tot.
332,50 €

Tomt och planläggning

Tomtens areal
6 744 m²
Tomtägare
uthyrd

Objektets beskrivning

Tomtens areal
6 744 m²
Tomtägare
uthyrd
Annat
egen bastu, balkong, hiss

Material, utrustning och uppvärming

Byggmaterial
betong
Taktyp
Sadeltak
Taktäckning
Plåt
Värmesystem
fjärrvärme jordvärme

Bostadsbolag

Bostadsbolag
Bostadsaktiebolaget Bokhandlargränd i Mariehamn
Disponent
Disponenta Ab, Adam Söderlund
Ansvar för fastighetsskötsel
servicebolag
Tomtägare
uthyrd

Kök

Väggmaterial
målad
Golvmaterial
parkett
Utrustning
spisfläkt mikrovågsugn diskmaskin
Spis
induktionsspis
Kylskåp
kylskåp frys

Badrum

Väggmaterial
kakel
Golvmaterial
klinker
Utrustning
duschvägg tvättmaskin torktumlare golvvärme wc dusch spegel

WC

Väggmaterial
kakel
Golvmaterial
klinker

Vardagsrum

Väggmaterial
målad
Golvmaterial
parkett

Sovrum

Antal
2
Golvmaterial
parkett

Övriga utrymmen

Övriga utrymmen
terass

Kontakta mäklaren

Dela sidan

Fortsätt utforska