Kärrstigen 6B

3r k bdr b hjk

Storlek

91 m²

Försäljningspris

175 000,00 €

Skuldfritt pris

175 000,00 €

Område

68810 Pedersöre

Typ

parhus

Välkommen till ett stilrent och modernt parhus i omtyckta Ytteresse – ett hem där du kan flytta rakt in och börja trivas från första stund.

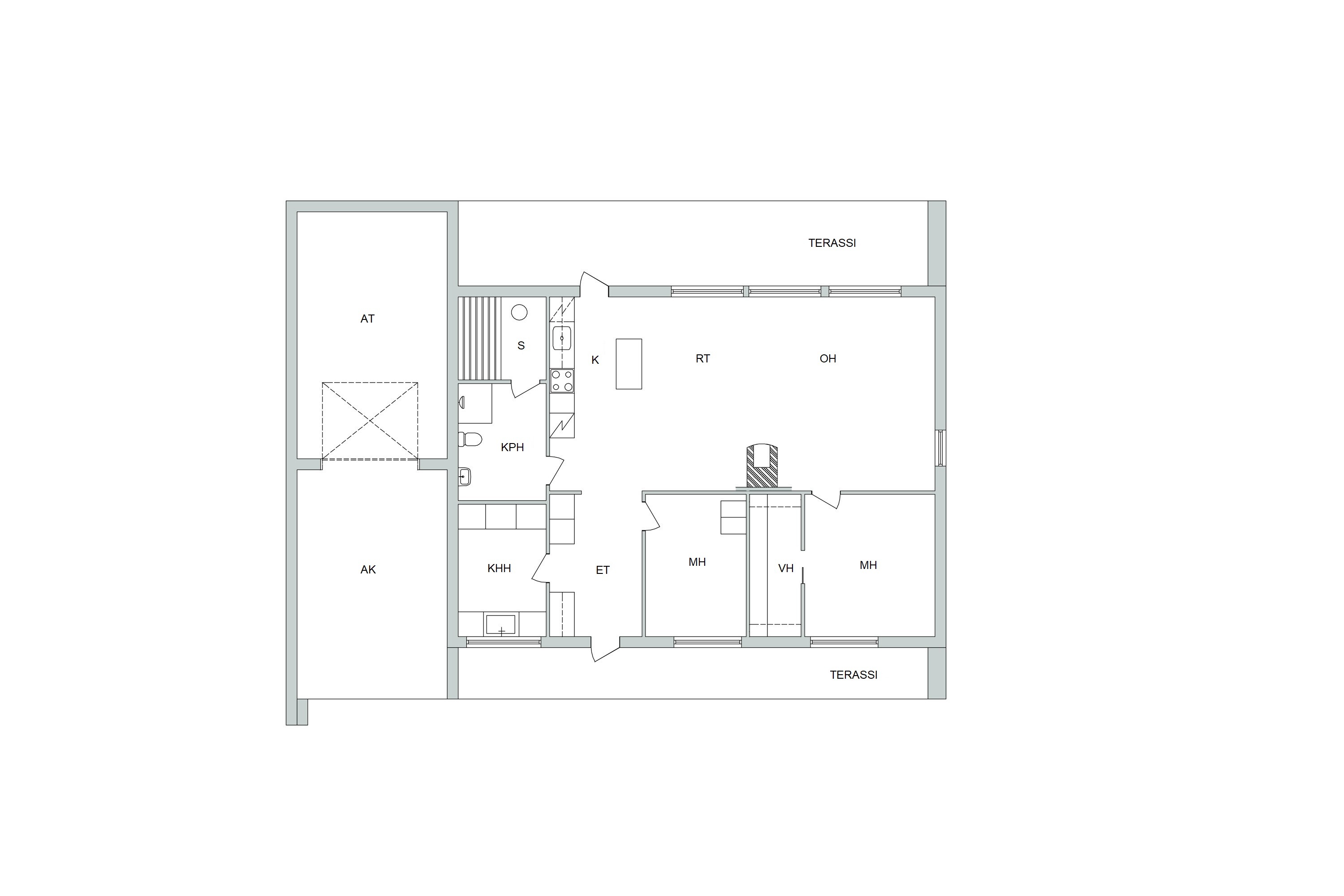
Bostaden är byggd 2019 och erbjuder en generös boyta på 91 m², vilket ger lite extra utrymme för både vardag och umgänge. Planlösningen är genomtänkt och funktionell med två sovrum samt ett öppet allrum och kök där det rikliga ljusinsläppet och den vackra naturutsikten skapar en harmonisk och trivsam atmosfär.

Här finns även ett stort badrum med bastu samt ett praktiskt hjälpkök som underlättar vardagen. Till bostaden hör dessutom både garage och biltak – bekvämt och smidigt året om.

Läget är verkligen något extra. Du bor i ett lugnt och omtyckt område med naturen alldeles inpå, samtidigt som daghem finns på bekvämt avstånd. Sportplanen som granne ger fina möjligheter till lek och aktivitet – perfekt för både stora och små.

Det här är ett hem med modern känsla och stilrena ytor – i skick som nytt. Här är det bara att flytta in och njuta.

Benny Herrmans
benny.herrmans@aktialkv.fi
044 042 8668

Grunduppgifter

Typ
parhus
Skuldfritt pris
175 000,00 €
Försäljningspris
175 000,00 €
Pris per kvadrat
1 562,50 €
Byggnadsår
2019
Beskrivning av objektet
3r k bdr b hjk
Bostaden blir ledig
enligt överenskommelse
Lokaler och utrustning
väg ända fram, egen bastu, elanslutning övergår
Antal rum
3 rum
Bostadsyta
91 m²
Övriga utrymmen
21 m²
Yta totalt
112 m²
Allmänt skick
bra
Energiklass
Ej lagenligt energicertifikat

Tomt och planläggning

Mera information om tomten
Tomten delas med grannen via delningsavtal
Tomtens areal
1 610 m²
Tomtägare
uthyrd
Tomtens typ
Plantomt

Objektets beskrivning

Tomtens areal
1 610 m²
Fastighetsbeteckning
599-414-49-43-L17
Tomtägare
uthyrd
Annat
väg ända fram, egen bastu, elanslutning övergår

Material, utrustning och uppvärming

Byggmaterial
trä
Taktäckning
Plåt
Värmesystem
frånluftsvärmepump
Spis
annan

Bostadsbolag

Tomtägare
uthyrd

Kök

Väggmaterial
målad
Golvmaterial
plast
Utrustning
spisfläkt diskmaskin
Spis
induktionsspis
Kylskåp
kylskåp/frys - kombiskåp

Badrum

Väggmaterial
kakel
Golvmaterial
plast
Utrustning
duschvägg golvvärme wc dusch

Hjälpkök

Väggmaterial
målad
Golvmaterial
plast
Utrustning
tvättmaskinsanslutning golvvärme

Vardagsrum

Väggmaterial
målad
Golvmaterial
plast

Sovrum

Antal
2
Golvmaterial
plast

Övriga utrymmen

Övriga utrymmen
terass

Kontakta mäklaren

Dela sidan

Fortsätt utforska