Kavelbrogränd 10

7r allrum k 2bdr wc b hjk

Storlek

209 m²

Försäljningspris

269 000,00 €

Skuldfritt pris

269 000,00 €

Område

68600 Jakobstad

Typ

egnahemshus

Välkommen till detta ståtliga egnahemshus i omtyckta Sandsund i Pedersöre! Här bor du i ett lugnt och barnvänligt område där trivseln är hög och grannskapet uppskattat.

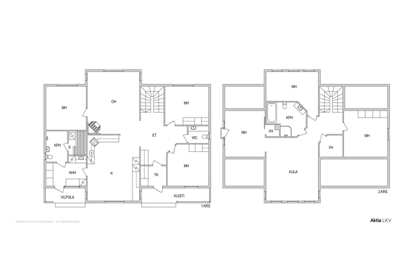
Huset är byggt 2005 och den övre våningen inreddes 2009. Med en boyta om 209 m² erbjuds en väl genomtänkt och funktionell planlösning med generösa sällskapsytor.

I vardagsrummet skapar kakelugnen både värme och en inbjudande stämning, samtidigt som den bidrar till uppvärmningen. Luftvärmepumpen ger energieffektiv komfort året om och på taket finns även 28 solpaneler som bidrar till husets elproduktion – en smart lösning som kan sänka elkostnaderna och samtidigt göra boendet mer energieffektivt.

Den egna tomten om 1450 m² ger gott om utrymme för trädgård, lek eller avkoppling. Den inglasade terrassen mot kvällssolen blir en naturlig samlingsplats där du kan njuta av långa och ljusa sommarkvällar. På gården finns dessutom dubbel biltak med tillhörande förråd som erbjuder praktisk förvaring och skydd för bilarna.

Ett rymligt och trivsamt hem i ett lugnt och uppskattat område – här finns plats att trivas och växa, i den takt som passar dig.

Robin Holländer
robin.hollander@aktialkv.fi
041 463 0532

Grunduppgifter

Typ
egnahemshus
Skuldfritt pris
269 000,00 €
Försäljningspris
269 000,00 €
Pris per kvadrat
1 287,08 €
Byggnadsår
2005
Beskrivning av objektet
7r allrum k 2bdr wc b hjk
Bostaden blir ledig
enligt överenskommelse
Lokaler och utrustning
väg ända fram, egen bastu, elanslutning övergår, direkt utgång
Antal rum
inte klassificerad
Bostadsyta
209 m²
Övriga utrymmen
0
Yta totalt
209 m²
Allmänt skick
bra
Energiklass
Ej lagenligt energicertifikat

Tomt och planläggning

Tomtens areal
1 450 m²
Tomtägare
egen
Tomtens typ
Plantomt

Objektets beskrivning

Tomtens areal
1 450 m²
Fastighetsbeteckning
599-406-9-465
Tomtägare
egen
Annat
väg ända fram, egen bastu, elanslutning övergår, direkt utgång

Material, utrustning och uppvärming

Byggmaterial
trä
Taktyp
Åstak
Taktäckning
Tegel
Värmesystem
ved el luftvärmepump
Spis
annan

Bostadsbolag

Tomtägare
egen

Kök

Väggmaterial
tapet
Golvmaterial
laminat
Utrustning
spisfläkt diskmaskin
Spis
keramisk spis separat ugn häll
Kylskåp
kylskåp frysskåp

Badrum

Väggmaterial
kakel
Golvmaterial
klinker
Utrustning
spegel

Hjälpkök

Väggmaterial
glasfiber tapet
Golvmaterial
klinker
Utrustning
tvättmaskinsanslutning golvvärme

WC

Antal
1
Väggmaterial
glasfiber tapet
Golvmaterial
klinker

Vardagsrum

Väggmaterial
tapet
Golvmaterial
laminat

Sovrum

Antal
6
Golvmaterial
parkett laminat

Övriga utrymmen

Övriga utrymmen
tambur inglasad terrass hobbyrum

Kontakta mäklaren

Dela sidan

Fortsätt utforska