Kjellinsvägen 18

3 sr, vr, matsal, 2 wc, bdr,b+garage

Storlek

130 m²

Försäljningspris

298 000,00 €

Skuldfritt pris

298 000,00 €

Område

10650 EKENÄS

Typ

egnahemshus

Våning

1 / 1

KNIPNÄS Inbjudande, förvånansvärt rymligt, trevligt hus erbjuder här trevliga omständigheter för t.ex. en barnfamilj precis intill skolor och hobbyer! Detta personliga hem andas -60 tal men erbjuder alla bekvämligheter man kan förvänta sig av ett modernt hem. Stora reparationer gjorda i bolaget, bl.a. yttertak, fönster, kök, badrumsavdelning motsvarande dagens standard och uppvärmningen sköts av underhållsfri fjärrvärme. Underbar, egen, privat tomt samt megastor terass som öppnar sig mot eftermiddags- och kvällssolen. Boka din egna visning med mäklarn!

Grunduppgifter

Typ
egnahemshus
Skuldfritt pris
298 000,00 €
Försäljningspris
298 000,00 €
Pris per kvadrat
1 795,18 €
Byggnadsår
1963
Beskrivning av objektet
3 sr, vr, matsal, 2 wc, bdr,b+garage
Bostaden blir ledig
enligt överenskommelse
Lokaler och utrustning
väg ända fram, egen bastu, elanslutning övergår
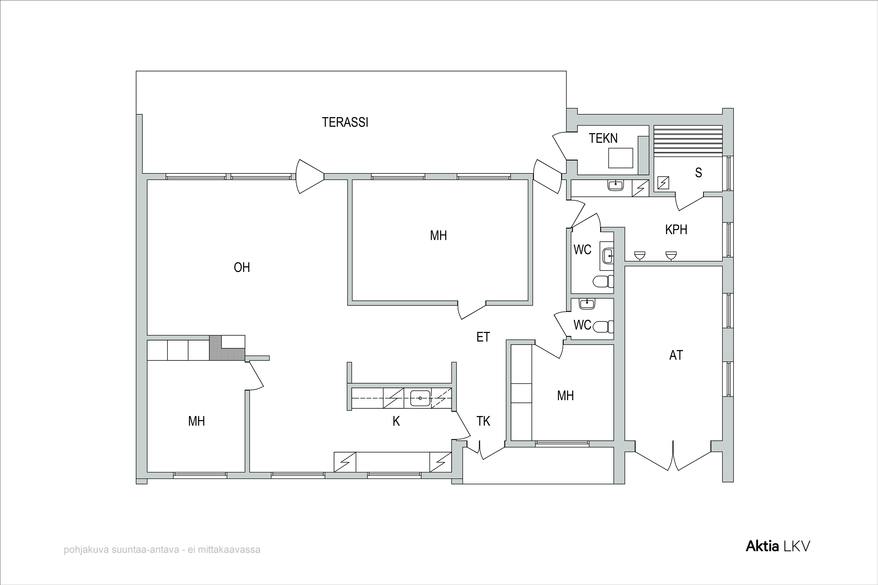
Antal rum
4 rum
Bostadsyta
130 m²
Övriga utrymmen
36 m²
Yta totalt
166 m²
Våning
1
Allmänt skick
bra
Energiklass
Ej lagenligt energicertifikat

Tomt och planläggning

Tomtens areal
1 108 m²
Tomtägare
egen
Tomtens typ
Plantomt
Byggrätt
AO/s-1 I1/2 (kork. 1,5 kerros)

Objektets beskrivning

Tomtens areal
1 108 m²
Fastighetsbeteckning
710-10-398-6
Tomtägare
egen
Annat
väg ända fram, egen bastu, elanslutning övergår

Material, utrustning och uppvärming

Byggmaterial
trä
Taktyp
Åstak
Taktäckning
Falsad plåt
Värmesystem
fjärrvärme
Spis
annan

Bostadsbolag

Tomtägare
egen

Kök

Väggmaterial
tapet
Golvmaterial
klinker
Utrustning
mikrovågsugn diskmaskin integrerad armatur spisfläkt / filter
Spis
induktionsspis separat ugn häll
Kylskåp
kylskåp/frys - kombiskåp

Badrum

Väggmaterial
kakel
Golvmaterial
klinker
Utrustning
tvättmaskinsanslutning golvvärme wc dusch spegel integrerad armatur badrumsskåp

WC

Antal
1
Väggmaterial
tapet
Golvmaterial
klinker

Vardagsrum

Väggmaterial
tapet
Golvmaterial
parkett

Sovrum

Golvmaterial
laminat

Övriga utrymmen

Övriga utrymmen
matplats tambur

Kontakta mäklaren

Dela sidan

Fortsätt utforska