Vitsippsgatan 3

2r,k,bdr,bastu

Storlek

55,5 m²

Försäljningspris

89 000,00 €

Skuldfritt pris

89 000,00 €

Område

10600 EKENÄS

Typ

radhus

Våning

1 / 2

RH Vitsippsgatan 3 K 58. B. 1988/2000. Bl.a bruksvattenrör bytta. Badstrand och båtbryggor i bolaget. Fiberanslutn.

Grunduppgifter

Typ
radhus
Form av ägande
egen
Skuldfritt pris
89 000,00 €
Försäljningspris
89 000,00 €
Pris per kvadrat
1 603,60 €
Hyra
600,00 €
Byggnadsår
1990
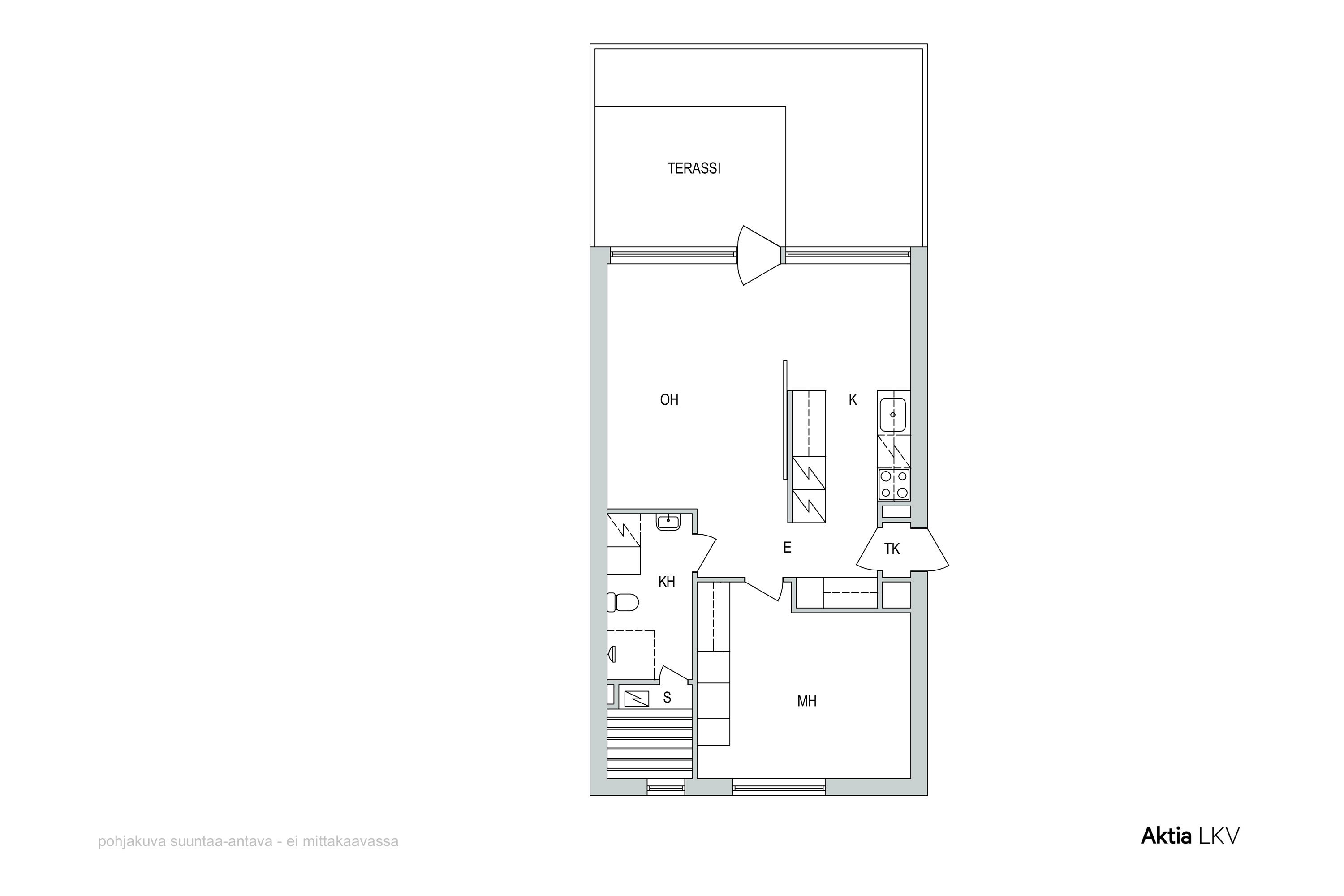
Beskrivning av objektet
2r,k,bdr,bastu
Bostaden blir ledig
vuokrattu
Lokaler och utrustning
egen bastu, kabel-tv, balkong
Antal rum
2 rum
Bostadsyta
55,5 m²
Övriga utrymmen
0
Yta totalt
55,5 m²
Våning
1
Allmänt skick
tillfredsställande
Energiklass
E2007

Kostnader

Skötselvederlag
265,29 €
Bolagsvederlag tot.
265,29 €

Tomt och planläggning

Tomtens areal
24 163 m²
Tomtägare
egen

Objektets beskrivning

Tomtens areal
24 163 m²
Tomtägare
egen
Annat
egen bastu, kabel-tv, balkong

Material, utrustning och uppvärming

Byggmaterial
element betong
Taktyp
platt tak
Taktäckning
Filt
Värmesystem
fjärrvärme

Bostadsbolag

Bostadsbolag
Bostads Ab Ekenäs Vitsippa
Disponent
Kontu Ab Thomas Öhman 0107397228 thomas.ohman@kontuoy.fi
Ansvar för fastighetsskötsel
servicebolag
Genomförda renoveringar i bostadsbolaget
Enligt separat bilaga
Planerade renoveringar i bostadsbolaget
Enligt separat bilaga
Tomtägare
egen

Kök

Väggmaterial
målad
Golvmaterial
parkett
Utrustning
spisfläkt diskmaskin integrerad armatur spisfläkt / rökkanal
Spis
elspis
Kylskåp
kylskåp/frys - kombiskåp

Badrum

Väggmaterial
kakel
Golvmaterial
klinker
Utrustning
duschskåp tvättmaskinsanslutning wc dusch spegel integrerad armatur

Vardagsrum

Väggmaterial
målad
Golvmaterial
parkett

Sovrum

Antal
1
Golvmaterial
parkett

Övriga utrymmen

Övriga utrymmen
tambur terass

Kontakta mäklaren

Dela sidan

Fortsätt utforska