Raseborgsvägen 25

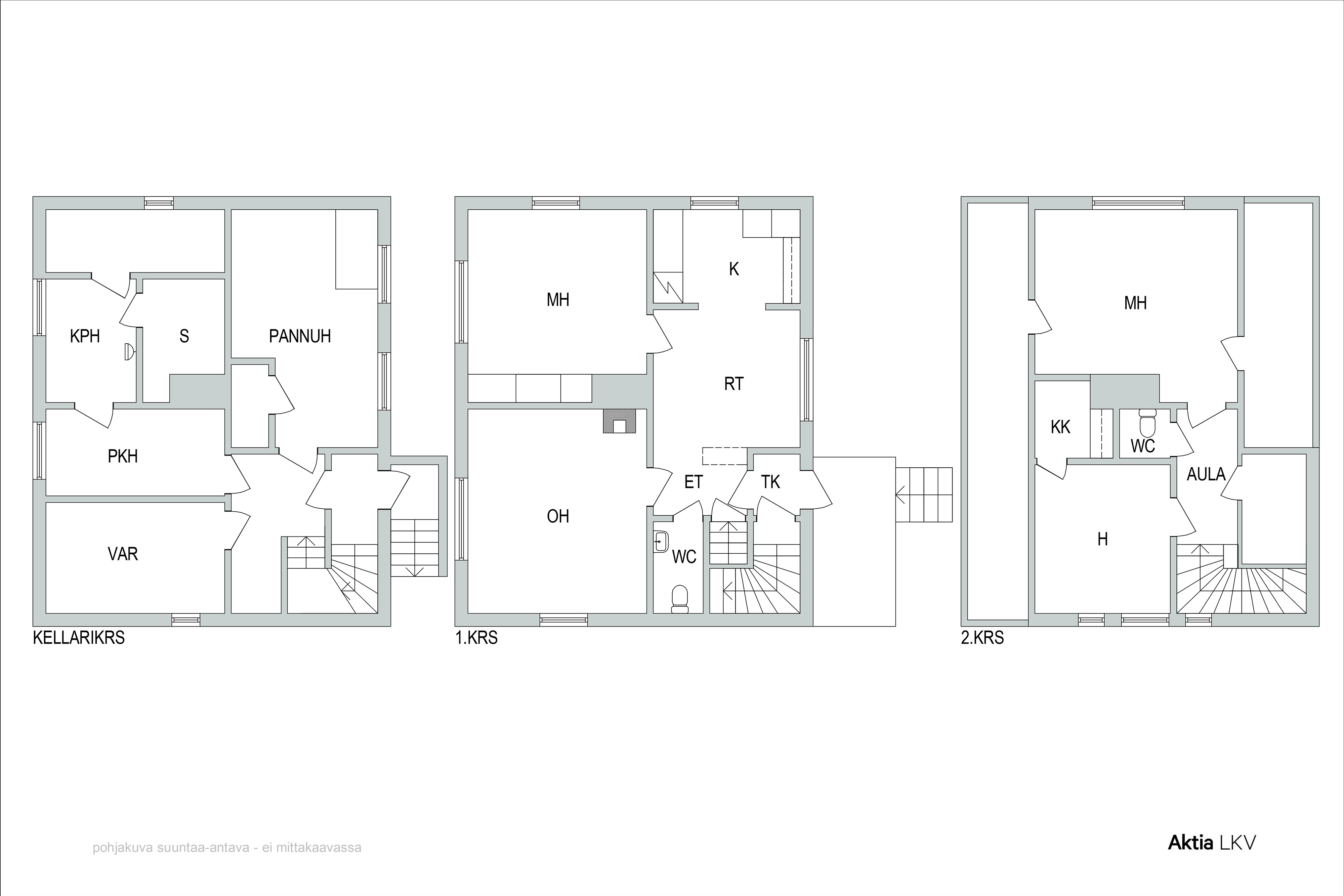
4r,kök,wc,källare med bastu

Storlek

105 m²

Försäljningspris

139 000,00 €

Skuldfritt pris

139 000,00 €

Område

10600 Ekenäs

Typ

egnahemshus

Våning

2 / 2

KNIPNÄS Charmigt -50 talshus med 1 1/2 våning på bra läge med separat 2 bilars varmt garage med smörjgrop. Egen hörntomt och husets fasader, fönster och yttertak är förnyade på 2000-talet. Underhållsfri fjärrvärme + eldstad, fiberanslutning. I detta hus får du renovera och fixa husets hela interiör enligt din smak! Skolor, hobbier och butik finns nära. Tack vare källaren lika stor som huset finns det rätt gott om utrymme. . Genast ledig.

Grunduppgifter

Typ
egnahemshus
Skuldfritt pris
139 000,00 €
Försäljningspris
139 000,00 €
Pris per kvadrat
842,42 €
Byggnadsår
1958
Beskrivning av objektet
4r,kök,wc,källare med bastu
Bostaden blir ledig
genast
Lokaler och utrustning
väg ända fram, egen bastu, elanslutning övergår
Antal rum
4 rum
Bostadsyta
105 m²
Övriga utrymmen
60 m²
Yta totalt
165 m²
Våning
2
Allmänt skick
tillfredsställande
Energiklass
Ej lagenligt energicertifikat

Tomt och planläggning

Tomtens areal
863 m²
Tomtägare
egen
Tomtens typ
Plantomt
Byggrätt
Rakennusoikeus jakautuu kahteen rakennusruutuun

Objektets beskrivning

Tomtens areal
863 m²
Fastighetsbeteckning
710-10-400-6
Tomtägare
egen
Annat
väg ända fram, egen bastu, elanslutning övergår

Material, utrustning och uppvärming

Byggmaterial
trä
Värmesystem
fjärrvärme ved
Spis
öppen spis

Bostadsbolag

Tomtägare
egen

Kök

Väggmaterial
målad
Golvmaterial
plast
Utrustning
spisfläkt diskmaskin
Spis
elspis
Kylskåp
kylskåp/frys - kombiskåp

Badrum

Väggmaterial
trä
Golvmaterial
betong
Utrustning
badkar dusch

WC

Väggmaterial
målad
Golvmaterial
plast

Vardagsrum

Väggmaterial
tapet
Golvmaterial
plast

Sovrum

Golvmaterial
plast

Övriga utrymmen

Övriga utrymmen
vindfång pannrum

Kontakta mäklaren

Dela sidan

Fortsätt utforska