Puistokatu 15

2h+k+wc+s

Storlek

54 m²

Försäljningspris

115 000,00 €

Skuldfritt pris

115 000,00 €

Område

10300 Karjaa

Typ

egnahemshus

Våning

1 / 2

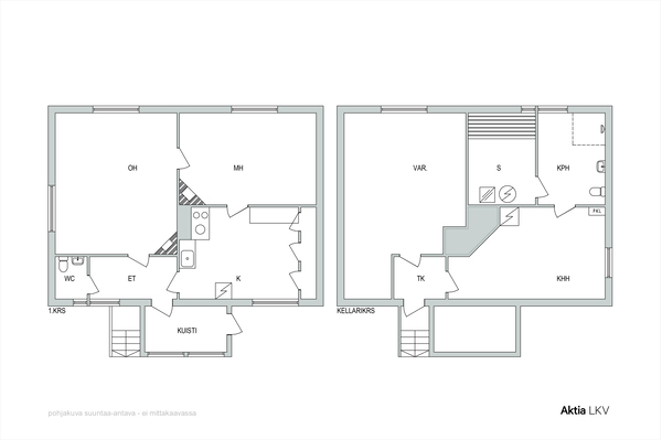
Vuonna 1946 valmistunut pieni ja ihastuttava talo sijaitsee rauhallisella ja arvostetulla huvila-alueella. Asuinkerroksessa on kaksi huonetta, keittiö sekä wc. Kellarikerroksesta löytyvät kodinhoitotilat, kylpyhuone, sauna sekä runsaasti varastotilaa.
1200 m2 aidatulla tasamaa tontilla varasto ja huvimaja.

Tiedustelut ja esittelyt:
Pia Eskola 040 158 2681 eller pia.eskola@aktialkv.fi
Anders Lundström 050 314 1562 eller anders.lundstrom@aktialkv.fi

Ett litet och charmigt hus från 1946, beläget i ett lugnt och uppskattat villaområde. På bostadsplanet finns två rum, kök samt wc. I källarvåningen finns hjälpkök, badrum, bastu samt gott om förvaringsutrymme.
På en plan inhägnad tomt 1200 m² finns ett förråd och en paviljong.

Info och visningar:
Pia Eskola 040 158 2681 eller pia.eskola@aktialkv.fi
Anders Lundström 050 314 1562 eller anders.lundstrom@aktialkv.fi

Grunduppgifter

Typ
egnahemshus
Skuldfritt pris
115 000,00 €
Försäljningspris
115 000,00 €
Pris per kvadrat
1 105,77 €
Byggnadsår
1946
Beskrivning av objektet
2h+k+wc+s
Bostaden blir ledig
enligt överenskommelse
Lokaler och utrustning
väg ända fram, egen bastu, elanslutning övergår, besiktning har utförts, fuktmätning har utförts
Antal rum
kaksio
Bostadsyta
54 m²
Övriga utrymmen
50 m²
Yta totalt
104 m²
Våning
1
Allmänt skick
tillfredsställande
Energiklass
D2018

Tomt och planläggning

Tomtens areal
1 200 m²
Tomtägare
oma
Tomtens typ
Tasamaatontti
mera information om planläggning
www.raasepori.fi. Asemakaava AP/s pientaloalue jolla ympäristö säilytetään.
Byggrätt
I 2/3. Rakennusoikeus neliömetreinä 150+100+talousrakennus 45.

Objektets beskrivning

Tomtens areal
1 200 m²
Fastighetsbeteckning
710-51-20-3
Tomtägare
oma
Annat
väg ända fram, egen bastu, elanslutning övergår, besiktning har utförts, fuktmätning har utförts

Material, utrustning och uppvärming

Byggmaterial
puu betoni
Taktyp
Harja
Taktäckning
Tiili
Värmesystem
Kaksi ilmalämpöpumppua, puuliesi, kaksi varaavaa takkaa, sähköinen lattialämmitys kellarikerroksen suihkuhuoneessa ja apukeittiössä, sähköpatteri
Spis
takka

Bostadsbolag

Tomtägare
oma

WC

Antal
1

Sovrum

Antal
1

Service och trafikförbindelser

Tjänster
Karjaan keskustaan n 600 m

Kontakta mäklaren

Dela sidan

Fortsätt utforska