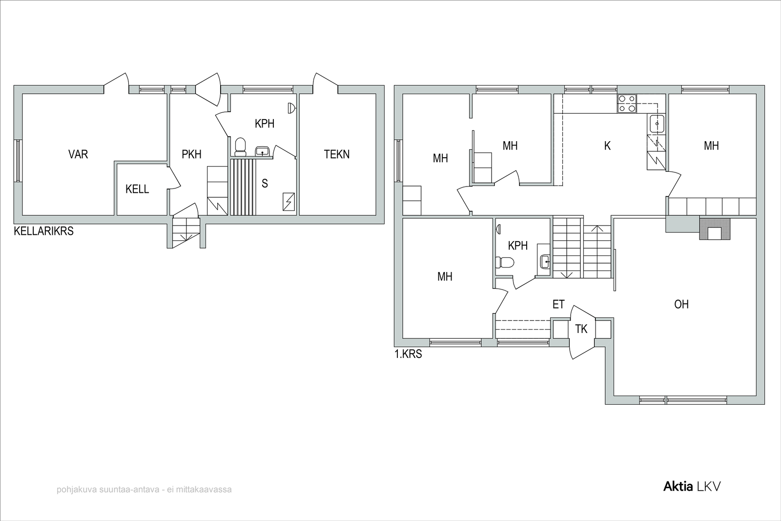
Jäkälätie 26

4-5h+k+kph+ph+s+var+tek.tila

Storlek

119,7 m²

Försäljningspris

358 000,00 €

Skuldfritt pris

358 000,00 €

Område

01380 Vantaa

Typ

egnahemshus

Våning

1 / 2

Persoonallinen omakotitalo kolmessa tasossa – kuntotarkastettu ja täynnä mahdollisuuksia

Tervetuloa tutustumaan tähän lämminhenkiseen ja omaleimaiseen omakotitaloon, joka tarjoaa runsaasti tilaa ja potentiaalia monenlaisiin asumistarpeisiin. Kolmikerroksinen pohjaratkaisu tekee kodista mielenkiintoisen ja käytännöllisen, ja tilat muuntuvat joustavasti perheen elämän eri vaiheisiin. Talo on hiljattain kuntotarkastettu ennen myynnin aloittamista.
Nykyisellään kodissa on kolme makuuhuonetta, mutta pohjaratkaisu mahdollistaa neljännen makuuhuoneen lisäämisen yksinkertaisella väliseinällä — täydellinen ratkaisu kasvavalle perheelle tai kotitoimistoksi.
Pihapiiri on kuin oma seikkailunsa: luonnonmukaisesti villiintynyt puutarhatontti, joka kutsuu viherpeukaloa loihtimaan unelmapuutarhan tai antaa tilan olla rennon huoleton omassa rauhassaan.
Lämmityksestä huolehtii kaukolämpö, joka tuo turvallisuutta ja helppoutta asumiseen. Lisälämmön lähteenä on myös kiertoilmatakka sekä uudehko ilmalämpöpumppu jolla viilennät tiloja myös kesäisin.
Sijainti on erinomainen: alue kehittyy vauhdilla, ja Vantaan ratikka on tulossa lähelle, mikä parantaa liikenneyhteyksiä entisestään ja nostaa alueen arvoa tulevaisuudessa.
Tämä koti tarjoaa persoonallista asumista luonnon rauhassa mutta palvelujen ja tulevien joukkoliikenneyhteyksien äärellä. Tervetuloa tutustumaan!

Grunduppgifter

Typ
egnahemshus
Skuldfritt pris
358 000,00 €
Försäljningspris
358 000,00 €
Pris per kvadrat
2 990,81 €
Byggnadsår
1981
Beskrivning av objektet
4-5h+k+kph+ph+s+var+tek.tila
Bostaden blir ledig
muu ehto
Lokaler och utrustning
egen bastu, elanslutning övergår, besiktning har utförts
Antal rum
5 h
Bostadsyta
119,7 m²
Övriga utrymmen
0
Yta totalt
119,7 m²
Våning
1
Allmänt skick
tillfredsställande

Kostnader

Övriga avgifter
Kaukolämmön kulut karkea arvio yhden hengentaloudelta noin 80 e/kk. Käyttösähkö kulutuksen mukaan, jätehuolto noin 30 €/kk riippuen sopimuksesta

Tomt och planläggning

Mera information om tomten
Vehreä hiukan villiintynyt puutarhatontti.
Tomtens areal
900 m²
Tomtägare
oma
mera information om planläggning
AO, E=0,2 I 2/3. Erillispientalojen korttelialue. Asuinrakennusten korttelialueilla saa sijoittaa sellaisia toimisto- tai niihin verrattavia tiloja, jotka eivät häiritse asumista yhteensä enintään 20 % tontin rakennusoikeudesta. Tontin rajalle katua tai muuta yleistä aluetta vastaan on istutettava pensasaita. Vähintää 3 metrin mittaisia puita tulee säilyttää ja tarpeen vaatiessa istuttaa niin, että tällaisten puiden määrä on vähintään yksi kutakin tontin 150 neliömetriä kohti.

Objektets beskrivning

Tomtens areal
900 m²
Fastighetsbeteckning
92-64-59-5
Tomtägare
oma
Annat
egen bastu, elanslutning övergår, besiktning har utförts

Material, utrustning och uppvärming

Byggmaterial
puu elementti betoni
Taktyp
harja
Taktäckning
betonitiili
Värmesystem
muu
Spis
takka

Bostadsbolag

Tomtägare
oma

Kök

Väggmaterial
maalattu
Golvmaterial
laminaatti
Utrustning
liesituuletin astianpesukone
Spis
sähköliesi
Kylskåp
jääkaappi/pakastin

Badrum

Väggmaterial
kaakeli puu
Golvmaterial
laatta
Utrustning
suihku peili kiinteät valaisimet

WC

Antal
1
Väggmaterial
kaakeli
Golvmaterial
laatta

Vardagsrum

Väggmaterial
maalattu puu
Golvmaterial
laminaatti

Sovrum

Antal
3
Golvmaterial
lauta

Service och trafikförbindelser

Tjänster
Tikkurilan palvelut noin 3,5 km. Kauppakeskus Jumbo n. 8 km.
Dagvård
Kuusikon päiväkoti n. 280 m.
Skola
Kuusikon koulu n. 280 m. Jokiniemen koulu n. 2,8 km.
Trafikförbindelser
Bussipysäkit n. 200 m, Tikkurilan juna-asema n. 2,7 km. Ratikan rakentaminen on tavoitteena alkaa vuonna 2025, ja liikennöinti alkaa suunnitelman mukaan vuonna 2029. Kuusikkoon on suunniteltu ratikkapysäkki.

Kontakta mäklaren

Dela sidan

Fortsätt utforska