Kungsvägen 49

3r, k

Storlek

72,5 m²

Försäljningspris

69 000,00 €

Skuldfritt pris

69 000,00 €

Område

65320 Vasa

Typ

höghus

Våning

3 / 3

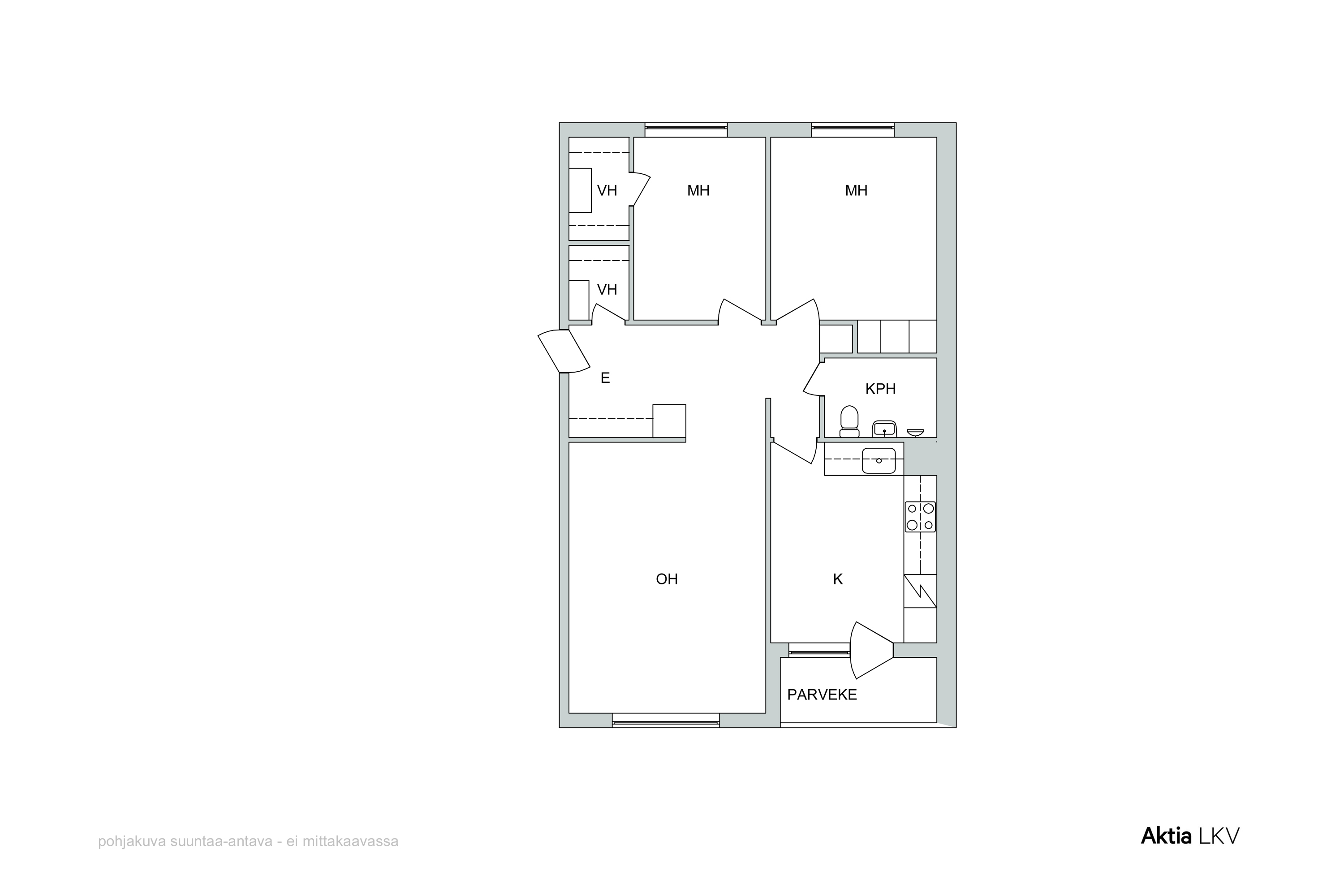
Välskött trerummare med utmärkt läge och smidiga, snabba förbindelser till Vasa centrum och övriga arbetsområden. Bostaden har en funktionell planlösning och erbjuder trivsamma ramar för en bekväm vardag. Bostadsbolaget är välskött och i gott skick, vilket ger ett tryggt och bekymmersfritt boende.

Den inglasade balkongen i sydvästläge låter dig njuta av eftermiddags- och kvällssolen. Till bostaden hör även en biltaksplats som säljs tillsammans med lägenheten och bidrar till extra komfort i vardagen.

Välkommen och bekanta dig!
Kom överens om visning Paula Hirvonen tfn 050-349 1801 eller paula.hirvonen@aktialkv.fi

Grunduppgifter

Typ
höghus
Form av ägande
egen
Skuldfritt pris
69 000,00 €
Försäljningspris
69 000,00 €
Pris per kvadrat
951,72 €
Hyra
660,00 €
Byggnadsår
1969
Beskrivning av objektet
3r, k
Bostaden blir ledig
viimeistään 1.5.2026
Lokaler och utrustning
kabel-tv, balkong, konditionsgranskning har inte utförts, fuktmätning har inte utförts
Antal rum
3 rum
Bostadsyta
72,5 m²
Övriga utrymmen
0
Yta totalt
72,5 m²
Våning
3
Allmänt skick
bra
Energiklass
D2018

Kostnader

Skötselvederlag
309,60 €
Bolagsvederlag tot.
309,60 €
Vattenavgift
15,00 €
Övriga avgifter
Vattenavgift är förskott och utjämnas årligen.

Tomt och planläggning

Tomtens areal
3 097 m²
Tomtägare
uthyrd

Objektets beskrivning

Tomtens areal
3 097 m²
Tomtägare
uthyrd
Annat
kabel-tv, balkong, konditionsgranskning har inte utförts, fuktmätning har inte utförts

Material, utrustning och uppvärming

Byggmaterial
betong
Taktyp
Ås
Taktäckning
Plåt
Värmesystem
fjärrvärme

Bostadsbolag

Bostadsbolag
Asunto-osakeyhtiö Kuninkaantie 49
Disponent
Ledger Proma Oy, Vaasan Taloasema Mika Kytöharju Tfn 045 200 4160 / mika.kytoharju@taloasema.fi
Ansvar för fastighetsskötsel
servicebolag
Genomförda renoveringar i bostadsbolaget
2024 Rappukäytävien kattovalojen uusiminen, alakerran huoneistojen parvekkeiden ulkopintojen korjaus, huoneistojen palovaroittimet 2023 Tuuletusparvekkeiden, ulkoseinien korjaus ja maalaustyöt 2021 Pohjanmaan R&S korjattu sokkelia, Ikkunoiden suodattimet/Pihla 2020Taloyhtiö teettänyt piha-alueen kaltevuuden muutostyön autokatoksen edessä ja vieraspaikkojen edessäsadeveden ohjaamiseksi sadevesikaivoon, joka sijaitsee vieraspysäköintipaikan reunassa. Valvoja CWKonsultWestergård, Työn tekivät KJB Rakennuspalvelu, asfaltointi Sundström 2019 Pihla vaihtanut suodattimet ikkunoihin 2016 Ikkuna- ja parvekeoviremontti 2013 Taloyhtiö teettänyt uuden putkiremontin, jossa myös pesuhuone saneerattu. Urakoitsija Caverion Suomi Oy 2012 Yläpohjan lisäeristys 2011 Rappujen päälle tasakattoiset lipat kalteviksi, tupakka/roska-astiat rappujen eteen 2010 Viemäriputkien sisäpuol. kunnostaminen uudella itsekantavalla komposiittiputkella 2009 Käyttövesiputkisto (lämmin ja kylmä) uusittu 2007 4kpl autokatospaikkoja rakennettu vanhojen jatkeeksi (paikat 20-23), osittain ikkunoita huoltomaalattu 2006 Antennivahvistimen uusinta (digiläh. vastaanotto), peltikatto maalattu, lukituksen perusparannus (EXEC-lukosto) 2005 Pohjaviemärien uusiminen muoviset putket 2004 Porraskäytävien maalaus, pysty- ja pohjaviemäreiden korkeapainehuuhtelut, kadunpuol. ikkunoiden ulkop. maalaus (talkoot), huoltorakennuksen katon uusiminen 2003 Taloyhtiön puhelinjakamoon vedetty VLP:n Netikka Huoneistonetti keskitin, joka mahdollistaa kiinteän internetyhteyden 2002 Kuntoarvio, keittiön hajulukkojen uusinta, Ilmastointikanavien nuohous ja ilmastoinnin säätötyöt 2001 Etelä-, pohjois- ja länsipuolisten elementtisaumojen uusiminen, linjasulkuventtiilien uusiminen 2000 Uusi kuivausrumpu pesutupaan (yht.Kun47 kanssa) 1999-2000 Peltikaton maalaus 1998 Lämmönvaihtimen uusinta (yht.Kun47 kanssa) 1996 Ikkunoiden ulkop. kunnostus 1994 Piha-asfaltointi 1984 Lukituksen uusinta
Planerade renoveringar i bostadsbolaget
2025 Keskikerroksen ja ylimmän kerroksen huoneistojen parvekkeiden kaiteiden ulkopintojen korjaustyöt 2025-2029 Pihan ja puutarhapuolen ulkoseinien kunnostus, IV-kanavien nuohous, pääsisäänkäyntien ulko-ovien uusiminen
Tomtägare
uthyrd

Kök

Väggmaterial
kakel målad
Golvmaterial
plast
Utrustning
mikrovågsugn diskmaskin integrerad armatur spisfläkt / filter
Spis
induktionsspis separat ugn häll
Kylskåp
kylskåp/frys - kombiskåp

Badrum

Väggmaterial
kakel
Golvmaterial
klinker
Utrustning
tvättmaskinsanslutning golvvärme wc dusch spegelskåp integrerad armatur badrumsskåp

Vardagsrum

Väggmaterial
målad
Golvmaterial
parkett

Sovrum

Antal
2
Golvmaterial
laminat

Övriga utrymmen

Övriga utrymmen
tambur

Service och trafikförbindelser

Tjänster
Supermarket, bensinstation och posten på gångavstånd
Skola
Finskspråkig lågstadie ca 280 m Svenskspråkig lågstadie ca 3,1 km
Trafikförbindelser
Busstrafik

Kontakta mäklaren

Dela sidan

Fortsätt utforska