Omenatarhantie 3

2h+k+s

Storlek

44 m²

Hyra

820,00 €

Område

06150 Porvoo

Typ

lofthus

Våning

1 / 1

Viihtyisä kaksio 44 m² Porvoon Omenatarhassa – oma sauna, terassi ja takapiha!

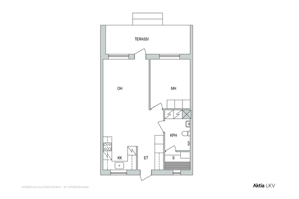
Kodikas ja hyvin pidetty kaksio rauhallisella ja halutulla Omenatarhan alueella tarjoaa mukavat puitteet viihtyisään asumiseen. Asunnossa on oma terassi ja takapiha, joissa on mukava nauttia ulkoilmasta.

Keittiö on toimiva ja tarjoaa runsaasti säilytystilaa.
Olohuoneesta on käynti terassille ja takapihalle, mikä lisää avaruutta ja valoisuutta.
Makuuhuoneessa on tilavat kaapistot.
Iso kylpyhuone mahdollistaa pyykkihuollon, ja säilytystilaa on hyvin myös siellä.
Sähkölämmitteinen sauna tuo arkeen ripauksen luksusta.

Asunnossa on ilmalämpöpumppu, joka tarjoaa viilennystä kesällä.
Lämmitys sisältyy vuokraan, joten asumiskustannukset pysyvät ennakoitavina.
Valokuituliittymä sekä kaapeli-tv sisältyvät myös vuokraan.
Lisäksi käytössäsi on tilava lämmin varasto sekä sähkötolpallinen autopaikka – molemmat sisältyvät vuokraan. Vapautuu 01.01.2026

Grunduppgifter

Typ
lofthus
Hyra
820,00 €
Byggnadsår
2018
Beskrivning av objektet
2h+k+s
Bostaden blir ledig
(pp.kk.vvvv)
Lokaler och utrustning
egen bastu, kabel-tv
Antal rum
kaksio
Bostadsyta
44 m²
Yta totalt
44 m²
Våning
1
Allmänt skick
bra
Energiklass
E2018

Kostnader

Vattenavgift
20,00 €

Tomt och planläggning

Tomtens areal
3 561 m²
Tomtägare
oma

Objektets beskrivning

Tomtens areal
3 561 m²
Tomtägare
oma
Annat
egen bastu, kabel-tv

Material, utrustning och uppvärming

Byggmaterial
puu
Taktyp
harjakatto
Taktäckning
pelti
Värmesystem
kaukolämpö

Bostadsbolag

Bostadsbolag
As Oy Porvoon Omenatarha
Disponent
Taloasema, Aseman Isännöinti Oy Sinimäentie 10 B , 02630 Espoo Olli Järvinen 0400 729066 anders.hurmerinta@taloasema.fi
Ansvar för fastighetsskötsel
huoltoyhtiö
Tomtägare
oma

Kök

Väggmaterial
maalattu
Golvmaterial
laminaatti
Utrustning
liesituuletin astianpesukone
Spis
keraaminen
Kylskåp
jääkaappi/pakastin

Badrum

Väggmaterial
kaakeli
Golvmaterial
laatta
Utrustning
pesukoneliitäntä lattialämmitys wc-istuin suihku peilikaappi kiinteät valaisimet kylpyhuonekaapisto asennettuja erikoisvarusteita

Vardagsrum

Väggmaterial
maalattu
Golvmaterial
laminaatti

Sovrum

Antal
1
Golvmaterial
laminaatti

Övriga utrymmen

Övriga utrymmen
Eteinen Terassi

Kontakta mäklaren

Dela sidan

Fortsätt utforska