Lindalintie 9

2h,k

Storlek

61,5 m²

Hyra

600,00 €

Område

02400 Kirkkonummi

Typ

höghus

Våning

5 / 6

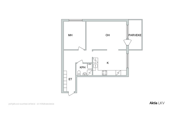
Tarjotaan vuokralle hissitalosta hyväpohjainen kaksio. 5/6 kerros. Lasitettu parveke pohjoiseen.

Sopimus määräaikainen, 3 vuoden sopimus. Luottotiedot tarkistetaan, 2 kuukauden vuokratakuu.

Optimaalinen sijainti, lähikauppa ja bussipysäkki vieressä.

Teitä palvelee/Ni betjänas av Gitty Nurmi 050 314 1560 gitty.nurmi@aktialkv.fi

Grunduppgifter

Typ
höghus
Hyra
600,00 €
Byggnadsår
1976
Beskrivning av objektet
2h,k
Bostaden blir ledig
genast
Lokaler och utrustning
balkong, hiss, konditionsgranskning har inte utförts, fuktmätning har inte utförts
Antal rum
kaksio
Bostadsyta
61,5 m²
Övriga utrymmen
0
Yta totalt
61,5 m²
Våning
5
Allmänt skick
tillfredsställande
Energiklass
C2018

Kostnader

Vattenavgift
10,00 €
Övriga avgifter
Vesimaksu on ennakkomaksu kuukausittain. Vesimittari luetaan kerran vuodessa. Vuokralainen solmii oman sähkösopimuksen ja sitoutuu ottamaan laajan kotivakuutuksen vastuuosineen.

Tomt och planläggning

Tomtens areal
2 326 m²
Tomtägare
oma

Objektets beskrivning

Tomtens areal
2 326 m²
Tomtägare
oma
Annat
balkong, hiss, konditionsgranskning har inte utförts, fuktmätning har inte utförts

Material, utrustning och uppvärming

Taktyp
Tasa
Taktäckning
huopa
Värmesystem
maalämpö muu

Bostadsbolag

Bostadsbolag
Asunto Oy Lindal 10
Disponent
Perttu Tuhkanen 041 313 4740 asiakaspalvelu@origoisannointi.fi Origo Isännöinti Oy Hirsalantie 11, 02420 Jorvas
Ansvar för fastighetsskötsel
huoltoyhtiö
Genomförda renoveringar i bostadsbolaget
Elementtien saumaus ja julkisivun maalaus -94, kaukolämmön alakeskus uusittu -96, kylmävesirunkoputkisto uusittu-00, julkisivun kunnostus, parvekelinjojen kunnostus, ikkunoiden ja parvekeovien uusiminen, vesikaton pinnoitteen uusiminen-04, Digi Tv -05, saunaosasto 1 -06, saunaosasto 2 -07, porrashuonemaalaus -11, lukitusjärjestelmä -11, myymälärakennuksen julkisivurakenteiden kuntoarvio -11, tukiasemalaitteiden purku rakennuksen katolta -12, pystyviemärien painehuuhtelu ja videokuvaus sekä kuvausten pohjalta tarvittavat korjaustoimenpiteet -12-13, viemäreiden painehuuhtelu 2013, hissi uusittu 2017, syväkeräyssäiliöt 2016, portaan ala-aulan kunnostus 2017, iv-kanavien puhdistus ja tasapainotus 2017, linjasaneerauksen hankesuunittelu 2019, linjasaneerauksen toteutussuunnittelu 2021, LVI-linjasaneeraus, rakennusautomaatiojärjestelmän uusinta, antenniverkon uusinta, valokuituverkon rakentaminen huoneistoihin, ryhmäkeskuksien uusinta kaikissa huoneistoissa, pääsähkökeskuksen uusinta, pesutuvan kunnostus, talosaunan uusinta, lämmitysjärjestelmän venttiileiden, yhteiden ja termostaattien vaihtotyö, polkupyörävaraston kunnostus, kuivaushuoneen kunnostus, piha-alueen asfaltoinnin uusinta 235 m2, porraskäytävän alakaton uusinta, porraskäytävien lattialaattojen uusinta, porraskäytävien huoneisto-ovien lukkorunkojen vaihto ja turvalukkorunkojen asennus oviin, huoneistojen porraskäytävien ovien vaihto, piha-alueen valaistuksen uusinta, kylmiön ulkoseinän korjaus, LTO-järjestelmän asennus, siirtyminen maalämpöön 2022, piha-alueen kunnostus 2023, as 15 ja yleisten tilojen tulipalokorjaus 2024
Planerade renoveringar i bostadsbolaget
2026 Julkisivu, elementtituuletukset/saumaukset 2027 Kattojen kunnostus/uusinta, salaojien tarkastus ja huuhtelu 2028 Lukosto (Abloy Sento), parvekkeiden kuntokartoitus (teräs/betoni), IV-järjestelmän nuohous, säätö/korjaus 2029 Sokkelien kunnostus 2033 Ikkunoiden huoltomaalaus/korjaus
Tomtägare
oma

Service och trafikförbindelser

Tjänster
Lähikauppa vieressä
Trafikförbindelser
Bussipysäkki vieressä.

Kontakta mäklaren

Dela sidan

Fortsätt utforska