Ramsayntie 6

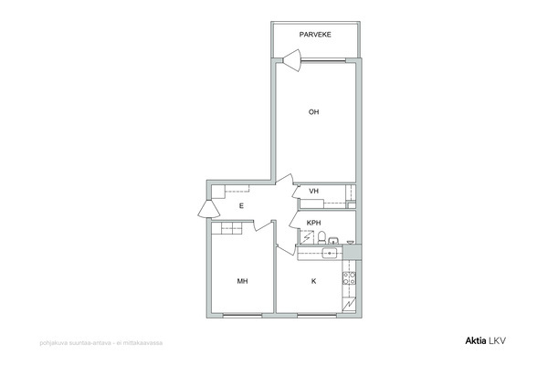
2h+k

Pinta-ala

59,5 m²

Vuokra

650,00 €

Sijainti

07940 Loviisa

Tyyppi

kerrostalo

Kerros

2 / 3

Siisti kaksio 59,5 m2 Loviisan Ulrika-Määrlahdessa.
Taloyhtiön toisessa kerroksessa remontoitu siisto kaksio. Keittiö ja kylpyhuone uusittu, sekä asunnon muut pinnat hyvässä kunnossa.
Lasitettu parveke etelään.
Taloyhtiössä ei suunnitteilla remontteja tällä hetkellä. Lähikauppaan muutama sata metriä.
Asuntoon on asennettu ilmalämpöpumpuu viilennystä varten, joten kesällä ei tarvitse kuumuudesta kärsiä.
Heti vapaa!

Perustiedot

Tyyppi
kerrostalo
Vuokra
650,00 €
Rakennusvuosi
1974
Kuvaus
2h+k
Vapautuminen
(pp.kk.vvvv)
Tilat ja varustelu
antenni, parveke
Koko
kaksio
Pinta-ala
59,5 m²
Kokonaispinta-ala
59,5 m²
Kerros
2
Yleiskunto
hyvä
Energialuokka
D2013

Kustannukset

Vesimaksu
25,00 €

Tontti ja kaavoitus

Tontin pinta-ala
5 766 m²
Tontin omistus
oma

Kohteen kuvaus

Tontin pinta-ala
5 766 m²
Tontin omistus
oma
Muuta
antenni, parveke

Materiaalit, varusteet ja lämmitys

Rakennusmateriaali
elementti betoni
Kattotyyppi
tasakatto
Kate
huopakate
Lämmitysjärjestelmä
kaukolämpö

Taloyhtiö

Taloyhtiön nimi
Asunto Oy Ramsayntie, Loviisa
Isännöinti
OIVA isännäinti Pasi-Ilkka Väyrynen 0107556166
Vastuu kiinteistön hoidosta
huoltoyhtiö
Taloyhtiöön suunnitellut remontit
parkkipaikan asfaltoimisen suunnittely
Tontin omistus
oma

Keittiö

Lattiamateriaali
laminaatti
Varustelu
astianpesukone
Jääkaappi
jääkaappi/pakastin

Pesutilat

Seinämateriaali
kaakeli
Lattiamateriaali
laatta
Varustelu
pesukoneliitäntä lattialämmitys wc-istuin suihku

Oleskelutilat

Seinämateriaali
maalattu
Lattiamateriaali
laminaatti

Makuuhuoneet

Lukumäärä
1
Lattiamateriaali
laminaatti

Muut tilat

Muut tilat
Eteinen Vaatehuone

Ota yhteyttä välittäjään

Jaa sivu

Jatka selailua