Fruktgränden 4

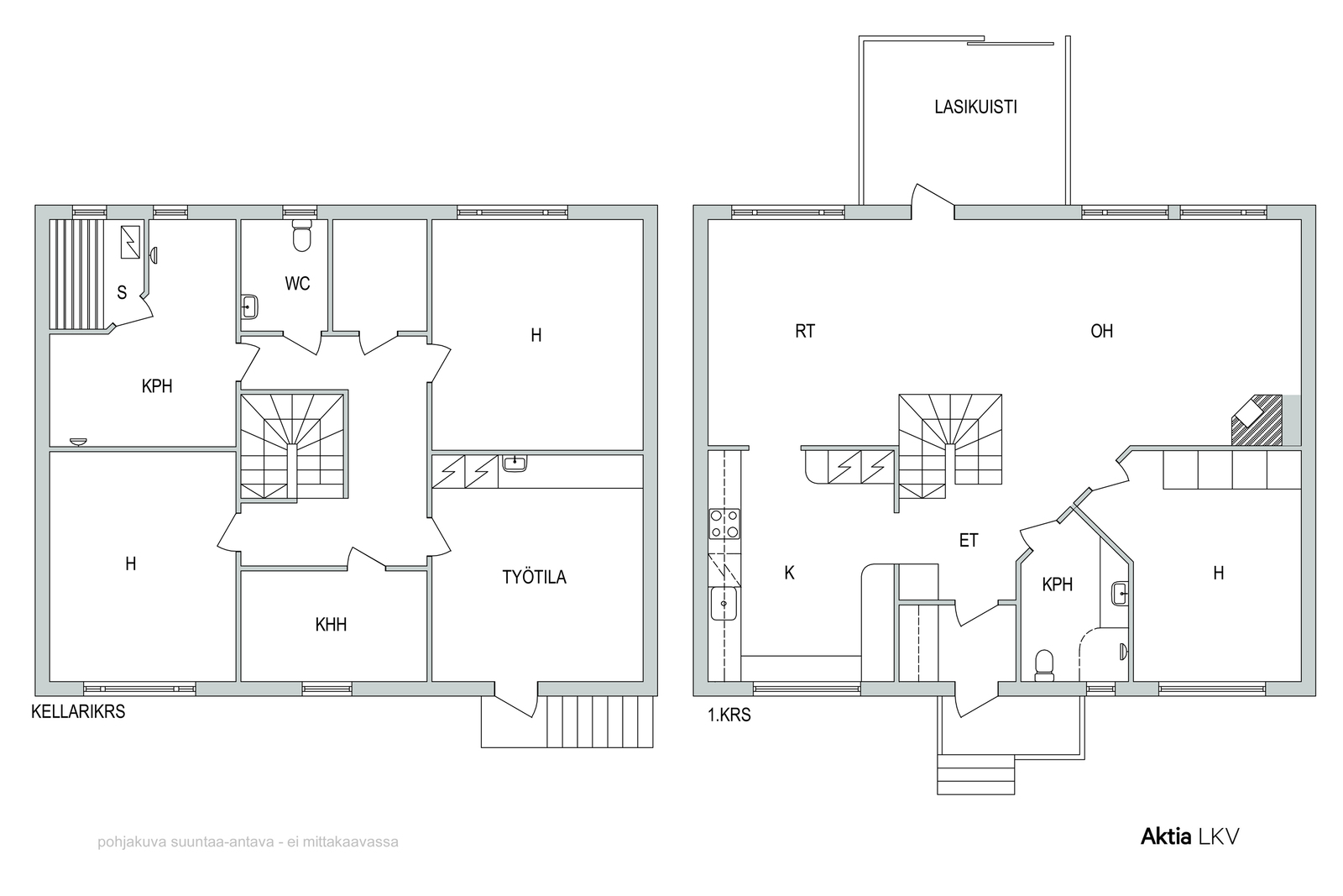
3 r, k, 2 bdr, b, hemvårdsrum, klädrum, wc, hobbyrum, glasveranda, biltak

Storlek

80 m²

Försäljningspris

309 000,00 €

Skuldfritt pris

309 000,00 €

Område

02710 02710

Typ

parhus

Våning

2 / 2

Högt i tak, luftigt, ljust vardagsrum med fin rymd.

Parhusbostad till salu i Kavallbacken intill Grankulla, byggt 1990. Lugn omgivning, grön karaktär, smidiga kommunikationer och mångsidig service.
Planlösningen genomtänkt för livets rytm. Källarvåning totalsanerad 2025 skapar trygg bas samt flexibla rum för hobby, förvaring eller extra funktioner ss. tex mottagning.
Glasveranda i söderläge för sol från vår till höst, perfekt för vila eller samvaro. Biltak ger en praktisk vardag året runt.
Familjevänligt område nära natur, skolor och bekvämligheter.

Tiedot/ Info:
Taina Friman
+358505447445
taina.friman@aktialkv.fi

Grunduppgifter

Typ
parhus
Form av ägande
egen
Skuldfritt pris
309 000,00 €
Försäljningspris
309 000,00 €
Pris per kvadrat
1 755,68 €
Byggnadsår
1990
Beskrivning av objektet
3 r, k, 2 bdr, b, hemvårdsrum, klädrum, wc, hobbyrum, glasveranda, biltak
Bostaden blir ledig
sopimuksen mukaan/ noin 2 kk kaupasta
Lokaler och utrustning
egen bastu, besiktning har utförts, fuktmätning har utförts
Antal rum
4 rum
Bostadsyta
80 m²
Övriga utrymmen
96 m²
Yta totalt
176 m²
Våning
2
Allmänt skick
tillfredsställande
Energiklass
Ej lagenligt energicertifikat

Kostnader

Skötselvederlag
250,00 €
Bolagsvederlag tot.
250,00 €

Tomt och planläggning

Tomtens areal
902 m²
Tomtägare
egen

Objektets beskrivning

Tomtens areal
902 m²
Tomtägare
egen
Annat
egen bastu, besiktning har utförts, fuktmätning har utförts

Material, utrustning och uppvärming

Byggmaterial
tegel
Värmesystem
el annat
Spis
annan

Bostadsbolag

Bostadsbolag
Asunto Oy Espoon Hedvigsro
Ansvar för fastighetsskötsel
aktionär
Tomtägare
egen

Kök

Väggmaterial
kakel målad
Golvmaterial
vinyl
Utrustning
mikrovågsugn diskmaskin integrerad armatur spisfläkt / rökkanal
Spis
induktionsspis separat ugn
Kylskåp
kylskåp frys

Hjälpkök

Väggmaterial
målad
Golvmaterial
klinker
Utrustning
tvättmaskinsanslutning golvvärme golvbrunn

WC

Väggmaterial
kakel
Golvmaterial
klinker

Vardagsrum

Väggmaterial
målad tapet
Golvmaterial
laminat

Sovrum

Antal
3
Golvmaterial
laminat vinyl

Övriga utrymmen

Övriga utrymmen
matplats tambur aula inglasad terrass walk-in closet hobbyrum

Kontakta mäklaren

Dela sidan

Fortsätt utforska