Niittytöyry 3

4h+k+s

Storlek

86 m²

Försäljningspris

227 922,48 €

Skuldfritt pris

230 000,00 €

Område

02760 Espoo

Typ

radhus

Våning

1 / 2

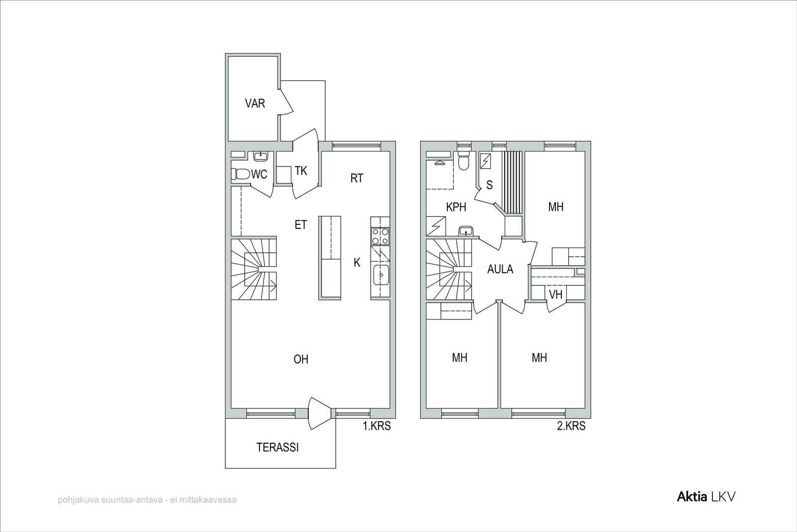
Rauhallisella, mutta keskeisellä sijainnilla kolmen makuuhuoneen rivitalokoti. Tämä koti soveltuu isommallekin perheelle. Alakerrassa ovat kodin yhteiset tilat, keittiö, olohuone ja erillinen wc. Lämpiminä vuodenaikoina tilan tuntua ja asumisen mukavuutta lisää tilava piha-alue katetulla terassilla. Täällä on mukavaa viettää aikaa vaikka grillaillen ystävien kanssa.
Yläkerrassa omassa rauhassaan ovat makuuhuoneet ja myös saunaosasto.
Alueella on hyvät peruspalvelut ja kulkuyhteydet bussilla, junalla sekä omalla autolla moneen suuntaan. Kattavat palvelut löytyvät Espoon Keskuksesta. Alueella on useita päiväkoteja ja kouluja lähietäisyydellä.
Tämän toimivan kodin ehdottomia valttikortteja ovat käytännöllinen pohjaratkaisu, keskeinen mutta rauhallinen sijainti liikenneyhteyksien ja kattavien lähipalveluiden äärellä kuin myös keskuspuiston kuntopolut ja liikuntamahdollisuudet kävelyetäisyydellä.
Tervetuloa tutustumaan ja katsomaan onko tämä sinun uusi kotisi.
Tiina Lunnela 0405811178 tiina.lunnela@aktialkv.fi

Grunduppgifter

Typ
radhus
Form av ägande
oma
Skuldfritt pris
230 000,00 €
Försäljningspris
227 922,48 €
Pris per kvadrat
2 674,42 €
Byggnadsår
1989
Beskrivning av objektet
4h+k+s
Bostaden blir ledig
enligt överenskommelse
Lokaler och utrustning
egen bastu, eget avtal med tjänstleverantören
Antal rum
4 h
Bostadsyta
86 m²
Övriga utrymmen
0
Yta totalt
86 m²
Våning
1
Allmänt skick
tillfredsställande
Energiklass
C2018

Kostnader

Skötselvederlag
520,80 €
Finansieringsvederlag
65,10 €
Bolagsvederlag tot.
585,90 €
Vattenavgift
20,00 €
Övriga avgifter
Yhtiössä on käytössä huoneistokohtaiseen mittaukseen perustuvia vesi-, sähkö- ja lämpölaskutuksia. Mittarit luettava omistajan/osakkaan vaihtuessa. Vesilasku tasoitetaan kerran vuodessa todellisten kulutuksen mukaisesti. Yk päätti ryhtyä julkisivujen puuosien huoltomaalaus urakkaan hankkeen rahoituksen varmistuttua ja hallituksen kilpailuttamaan ja ottamaan maalaushankkeen hankelaskelman mukaisesti lainan enintään 36 500,00€. Yk valtuutti hallituksen ja isännöitsijän hakemaan riittävä määrä panttikirjoja maalausurakkaa koskevaa lainaa varten. Yk valtuutti hallituksen määrittelemään pääomavastikkeen määrän huoltomaalausprojektin taloudellisen loppuselvityksen jälkeen. Jyvitys osakkaille tapahtuu hankkeen valmistuttua. Yk valtuutti hallituksen kilpailuttamaan ja valitsemaan latausinfraa tarjoavia toimijoita sekä allekirjoittamaan tarvittavat sopimukset. Hallitus valtuutettiin määrittämään mahdollisesti latausjärjestelmästä syntyvien kustannusten kattamiseksi käyttökorvaus.

Tomt och planläggning

Tomtens areal
6 272 m²
Tomtägare
oma

Objektets beskrivning

Tomtens areal
6 272 m²
Tomtägare
oma
Annat
egen bastu, eget avtal med tjänstleverantören

Material, utrustning och uppvärming

Byggmaterial
betoni
Taktyp
Harja
Taktäckning
Pelti
Värmesystem
kaukolämpö muu

Bostadsbolag

Bostadsbolag
Asunto Oy Niittytöyry
Disponent
Kiinteistö Tahkola Oy Turvalaaksonkaari 2, 3.krs. 01740 Vantaa Mikko Kosonen 0207481051 mikko.kosonen@kiinteistotahkola.fi
Ansvar för fastighetsskötsel
huoltoyhtiö
Genomförda renoveringar i bostadsbolaget
2025; energiatodistuksen uusiminen 2024; parkkipaikkojen aitojen maalaus, lämmönjakojärjestelmän automaation uusiminen 2023; jätevesiviemäreiden huoltotarkistus/korjaus sisältäen huuhtelun ja kuvauksen, salaojien kuntotarkastus 2022; lasten leikkipaikalle ja kodalle menevien portaiden uusiminen 2021; korvausventtiilien, ikkunoiden yläpuolella uusinta/tarkistus (suoritettu osittain), kiinteistön kuntoarvio, ulkovarastojen pesu, huoneistojen massakosteuskartotus 2020; kesävesiletkujen uusinta, grillikodan puuosien käsittely, hiekkalaatikon kunnostus, B-talon edessä olevan rinteen maisemointi, välikattojen tarkistus (tuhoeläimet) 2019; kurtturuusut poistettu, pihakeinun uusinta, ulkoalueiden puuosien pesu 2018; pintavesin poisohjaus rakennuksista (pintavesikourujen uudelleen suuntaus), päällysteet (piha), märkätilojen ja vesipisteiden kartoitus huoneistossa, liesikupujen vaihto/tarkastus, huippuimureiden vaihto, ilmastoinnin puhdistus ja säätö 2017; kattojen tarkastus, rakenteelliset korjaukset (aidat, muurit, kaiteet) 2016; ulkopuolisten puuosien huoltomaalaus, aitojen ja jätekatoksen kunnostus sekä maalaus, puuovien tiivistys ja maalaus, ulko-ovet 2015; lämmönjakohuoneen maalaus, sähköpääkeskuksen maalaus, lipputanko uusittu, talovaraston kunnostus ja maalaus, kattojen uusinta, vesikatto, palokatkot asennettu välipohjaan 2013; grillikatos ja elementtisaumaus 2011; talovarasto, lukituksen uusinta (Sento) 2009; patterien ja linjasäätoventiilien uusinta 2008; ulkopuolisten puuosien huoltomaalaus 2004; piha-aitojen peruskorjaus, ilmastoinnin puhdistus ja säätö
Planerade renoveringar i bostadsbolaget
Huoltosuunnitelmassa: 2025 Julkisivujen puuosien huoltomaalaus, alustavasti suunnitteilla 2025 Ikkunoiden huoltokierrokset, alustavasti suunnitteilla 2025 Kattovesien poisohjauksen parantaminen, alustavasti suunnitteilla 2025 Salaojakaivojen tarkistuskaivojen esiin kaivaminen, huoltosuunnitelmassa 2025 Palovaroittimien asennus huoneistoihin (pelastuslain muutos 01.01.2024) 2026 Ulko-ovien kunnossapitokorjaukset, alustavasti suunnitteilla 2027 Käyntiluukkujen rakentaminen tuulettuviin alapohjiin, alustavasti suunnitteilla 2028 Ilmastoinnin nuohous ja säätö, alustavasti suunnitteilla 2029 Kaukolämpöpaketin uusimisen käynnistäminen, alustavasti suunnitteilla 2029 Viemäreiden kuvaus ja huuhtelu, alustavasti suunnitteilla 2029 Salaojien kuvaus ja huuhtelu, alustavasti suunnitteilla 2030 Elementtisaumojen uusiminen, alustavasti suunnitteilla
Tomtägare
oma

Övriga utrymmen

Övriga utrymmen
Terassi

Service och trafikförbindelser

Tjänster
Alepa, Espoon keskuksen ruokakaupat ja kattavat palvelut. Terveysasema Samaria. Kirjasto Espoon keskus.
Dagvård
Alueella useita. Pilke päiväkodit Suvela ja Kuurinnniity.
Skola
Alueella useita eri asteiden kouluja, Sunan koulu, Omnia.
Trafikförbindelser
Linja-auto, juna Tuomarilasta ja Espoon Keskuksesta.

Kontakta mäklaren

Dela sidan

Fortsätt utforska