Dalvägen 11

2r, öppet kök, bdr, balkong

Storlek

58 m²

Försäljningspris

238 012,72 €

Skuldfritt pris

239 000,00 €

Område

02700 Grankulla

Typ

höghus

Våning

3 / 3

Inflyttningsklar helhet för en liten familj, bra placeringsobjekt för dej som vill hyra ut. Bostaden och bolaget i ypperligt skick. Bostaden renoverad 2007. 1/3 våningen, ej hiss. Kort väg till tågstationen, ca 50 meter. Information och förfrågningar: Taina Friman, 050 5447 445, taina.friman@aktialkv.fi

Grunduppgifter

Typ
höghus
Form av ägande
egen
Skuldfritt pris
239 000,00 €
Försäljningspris
238 012,72 €
Pris per kvadrat
4 120,69 €
Byggnadsår
1963
Beskrivning av objektet
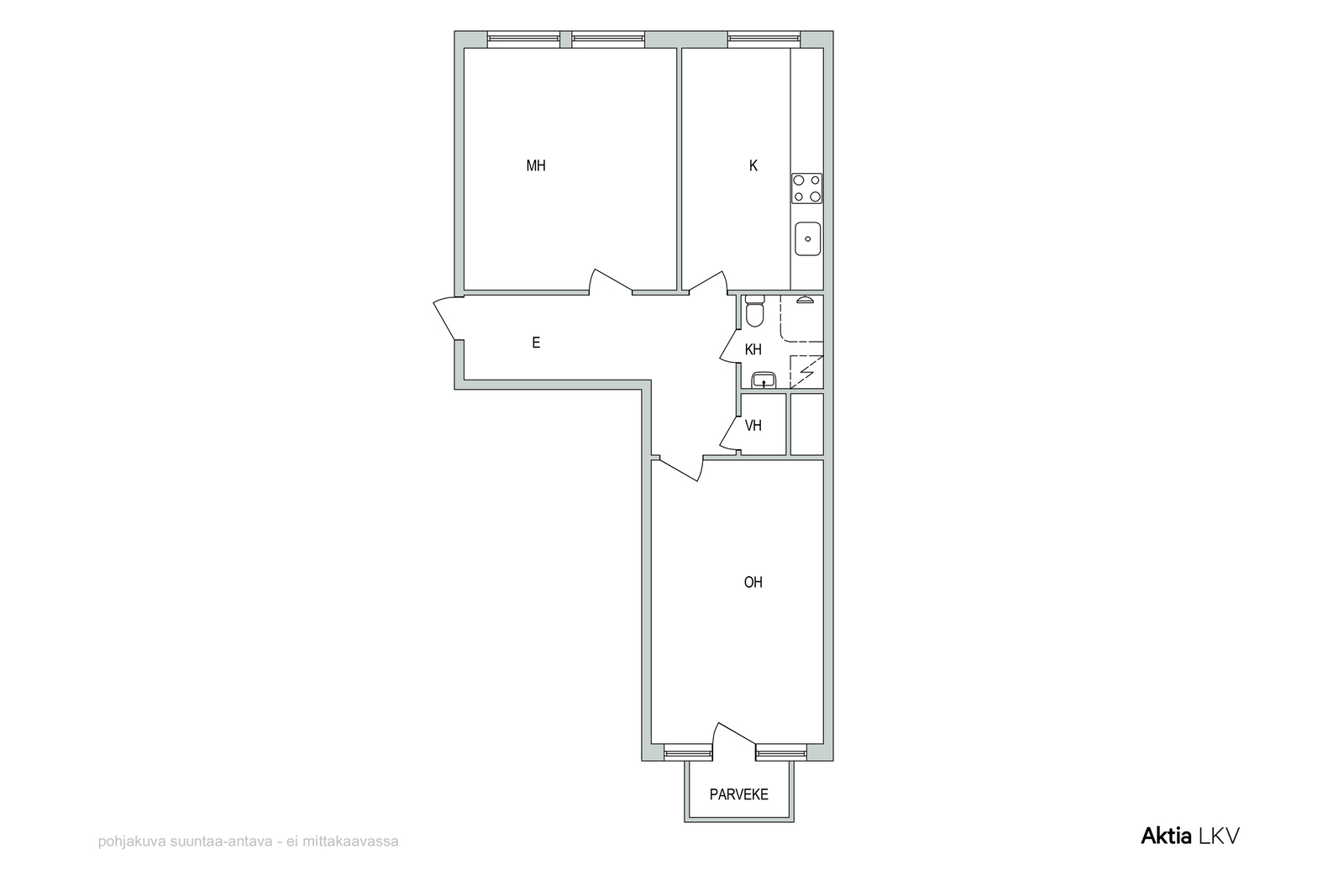
2r, öppet kök, bdr, balkong
Bostaden blir ledig
genast
Lokaler och utrustning
kabel-tv, balkong
Antal rum
2 rum
Bostadsyta
58 m²
Övriga utrymmen
0
Yta totalt
58 m²
Våning
3
Allmänt skick
tillfredsställande
Energiklass
D2018

Kostnader

Skötselvederlag
220,40 €
Finansieringsvederlag
72,50 €
Bolagsvederlag tot.
292,90 €
Vattenavgift
21,00 €

Tomt och planläggning

Tomtens areal
1 819 m²
Tomtägare
egen

Objektets beskrivning

Tomtens areal
1 819 m²
Tomtägare
egen
Annat
kabel-tv, balkong

Material, utrustning och uppvärming

Byggmaterial
betong
Värmesystem
fjärrvärme

Bostadsbolag

Bostadsbolag
Asuto Oy Cagus Bostads Ab
Garage
7
Tomtägare
egen

Kök

Väggmaterial
kakel målad
Golvmaterial
parkett
Utrustning
spiskupa diskmaskin integrerad armatur
Spis
keramisk spis
Kylskåp
kylskåp/frys - kombiskåp

Badrum

Väggmaterial
kakel
Golvmaterial
klinker
Utrustning
duschvägg tvättmaskin tvättmaskinsanslutning wc spegelskåp integrerad armatur

Vardagsrum

Väggmaterial
målad
Golvmaterial
parkett

Sovrum

Antal
1
Golvmaterial
parkett

Övriga utrymmen

Övriga utrymmen
tambur walk-in closet

Kontakta mäklaren

Dela sidan

Fortsätt utforska