Framnäsvägen 2

4 rok, tvättstuga, bastu, 2 bad, garage, förråd.

Storlek

98,9 m²

Försäljningspris

130 000,00 €

Skuldfritt pris

130 000,00 €

Område

22100 MARIEHAMN

Typ

egnahemshus

Välplanerat Myresjö-hus i I-plan nära centrum.

Välkommen till ett trevligt boende med närhet till skola,matbutik,daghem och ca 2 km till centrum i Mariehamn.

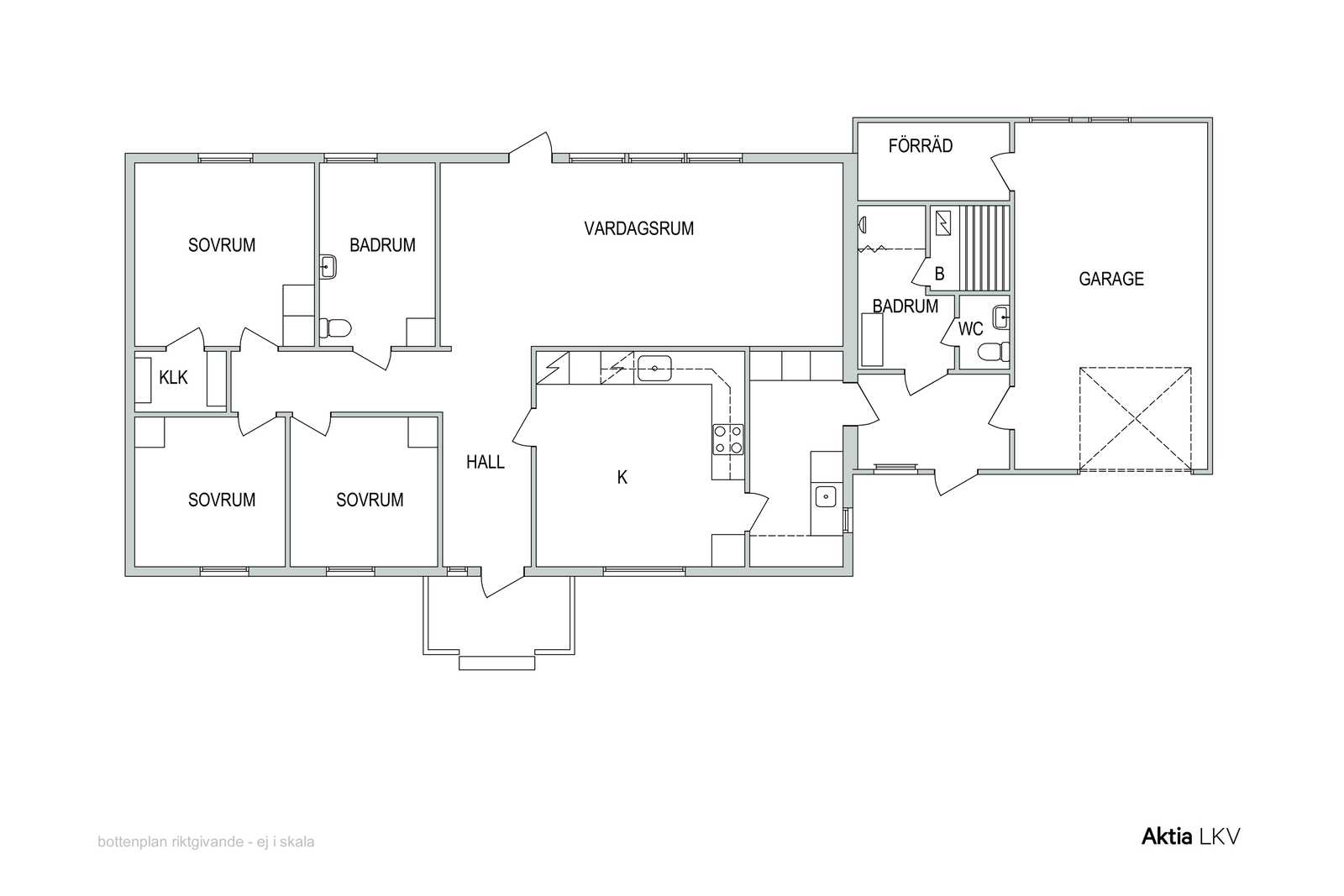
Bostadshuset har total yta om ca 150 m2 fördelat på hall, kök, tre sovrum, vardagsrum, klädvårdsrum, förråd, toalett, två badrum, bastu och garage.
Huset är byggt 1983 i trä och har gjuten platta som grund, fasad klädd med träpanel och tak klätt med tegel.
Köket är utrustat med elspis, fläkt, diskbänk, kyl, frys och inredning med goda förvaringsmöjligheter och avställningsytor.
De två badrummen är inredda med våtrumsmatta, våtrumstapet/träpanel på vägg och utrustade med dusch, wc och handfat.
Klädvårdsrummet är utrustat med tvättmaskin och bänk med ho.
Inredningsmaterialen domineras av plastmatta på golv, målade/tapetserade väggar och skivor i innertaken.
Trevlig uteplast mot söder.

Huset värms med luft/luftvärmepump och elradiatorer.
Byggnaden är ansluten till stadens vatten - och avloppsnät.
Energiklass E.

Tomten är 924 m2 och belägen på detaljplanerat område och gränsar till parkområde i öster. Tomten arrenderas av Mariehamns stad och arrendet var 697 € för år 2025. Det är möjligt att köpa tomten av Mariehamns stad och då är köpesumman idag 33.914 €.
Arrendesumman och kostanden för att köpa tomten varierar från år till år och beror på tomtpris- och levandskostandsindex.

Investigo Ab har utfört konditionsgranskning och energideklaration i november 2025 och protokollet fås på begäran.

Köpare betalar överlåtelseskatt, 3 % av köpesumman.

Grunduppgifter

Typ
egnahemshus
Skuldfritt pris
130 000,00 €
Försäljningspris
130 000,00 €
Pris per kvadrat
863,79 €
Byggnadsår
1983
Beskrivning av objektet
4 rok, tvättstuga, bastu, 2 bad, garage, förråd.
Bostaden blir ledig
enligt överenskommelse
Lokaler och utrustning
väg ända fram, egen bastu, elanslutning övergår, besiktning har utförts, fuktmätning har utförts
Antal rum
4 rum
Bostadsyta
98,9 m²
Övriga utrymmen
51,6 m²
Yta totalt
150,5 m²
Våning
1
Allmänt skick
nöjaktig
Energiklass
E2018

Tomt och planläggning

Tomtens areal
924 m²
Tomtägare
uthyrd
Tomtens typ
Plantomt

Objektets beskrivning

Tomtens areal
924 m²
Fastighetsbeteckning
478-25-3-5-L0
Tomtägare
uthyrd
Annat
väg ända fram, egen bastu, elanslutning övergår, besiktning har utförts, fuktmätning har utförts

Material, utrustning och uppvärming

Värmesystem
el luftvärmepump

Bostadsbolag

Tomtägare
uthyrd

Kök

Väggmaterial
tapet halvpanel
Golvmaterial
plast
Utrustning
mikrovågsugn diskmaskin spisfläkt / rökkanal
Spis
elspis
Kylskåp
kylskåp/frys - kombiskåp frys

Badrum

Väggmaterial
trä tapet
Golvmaterial
plast
Utrustning
tvättmaskin wc dusch spegelskåp

Hjälpkök

Väggmaterial
tapet
Golvmaterial
plast
Utrustning
tvättmaskin

Vardagsrum

Väggmaterial
tapet

Sovrum

Antal
3
Golvmaterial
laminat

Service och trafikförbindelser

Tjänster
Ca 1,5 km
Dagvård
ca 1,5 km
Skola
ca 1,5 km

Kontakta mäklaren

Dela sidan

Fortsätt utforska